前言
《揭阳市普宁市青梅产业园控制性详细规划》(草案) 公示

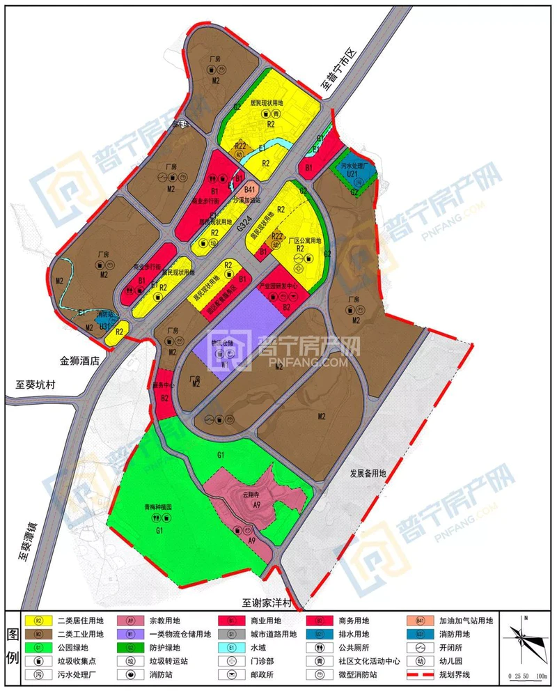
规划范围
项目地坐落在普宁马鞍山农场,规划范围东至谢家洋、南面至云翔寺、西至金狮酒店、北至沙溪农场,规划面积1.3551平方公里,其中城市建设用地120.87公顷。

发展定位
打造集青梅加工生产、技术研发、旅游观光为一体的现代产业园。
发展规模
总体结构
青梅产业园形成“一心三区”的空间结构。

路网规
规划区新建道路尽量保持方格网状结构,使土地的利用率达到最大化。在现状建成区尽量尊重原有的路网格局。规划G324为城市主干道,控制红线宽度50米,双向6车道,24米路为城市次干道线,控制红线宽度24米,双向4车道,其他道路为城市支路,控制红线宽度分别为16米、12米,双向2车道,采用一块板形式。

公告起止日期为2019年1月5日至2019年12月5日。
普宁青梅
普宁栽培青梅已有700多年历史。全市2008年有青梅种植面积16.3万亩,年产量3.5万吨,出口量2.8万吨,种植面积、总产量、出口量均居全国县(市)级首位,1995年4月被中国农学会特产经济专业委员会命名为"中国青梅之乡",同年4月,广东省又确定在普宁建立"中国青梅种质资源基地"。
1997年被第三届全国农业博览会认定为名牌产品,并被载入《广东省优稀水果图谱》。
2008年12月,国家质检总局决定对"普宁青梅"实施地理标志产品保护。
结语