普宁青梅产业园建设项目土地规划有新调整,涉及这几个乡镇!
今天,普宁市自然资源局发布了关于《广东省普宁市土地利用总体规划(2010-2020年)修改方案(揭阳市普宁现代农业(青梅)产业园建设项目)》成果的公告。《方案》已于2020年4月1日通过广东省人民政府批准(粤府土审(01)[2020]42号)。根据相关法律、法规要求,现将《方案》成果向社会公告。

为发挥普宁市青梅特色珍稀资源和生态特色、企业品牌文化等优势,以现有青梅产业为基础,以培育扶持大型综合性龙头企业为基点,整合产业、科技、旅游、文化、资金等多方优势资源,传播“中国青梅之乡”的梅文化,使普宁青梅的特产文化得以传承和发展,实现普宁青梅产业的跨越式发展,在上级部门的支持和指导下,选址在普宁市马鞍山农场,进行揭阳市普宁现代农业(青梅)产业园的建设,项目拟选用地不符合《广东省普宁市土地利用总体规划(2010-2020年)》。普宁现代农业(青梅)产业园建设项目已列入广东省2018年重点建设项目计划,是广东省2018年产业工程重点建设前期预备项目。根据《广东省人民政府办公厅印发广东省土地利用总体规划实施管理规定的通知》(粤府办[2013]3号)等文件规定、要求,普宁市人民政府组织编制了《广东省普宁市土地利用总体规划(2010-2020年)修改方案(揭阳市普宁现代农业(青梅)产业园建设项目)》。
规划修改过程中,调入地块规划用途由农用地和其他土地调整为城乡建设用地;调出地块规划用途由城乡建设用地调整为农用地,以保持普宁市建设用地规模平衡。本项目涉及的调入调出地块面积均为13. 3148公顷,规划修改后,普宁市规划农用地面积增加0. 7438公顷,其中耕地面积增加8. 8656公顷,园地面积减少 10. 8899公顷,林地面积减少 0. 9974公顷,其他农用地面积增加3. 7655公顷;建设用地面积保持不变,城乡建设用地面积保持不变;其他土地面积减少0. 7438公顷。根据现行规划,普宁市目标年(2020年)各项主要调控指标为:耕地保有量不低于21837公顷,基本农田保护面积不低于 18532公顷,建设用地总规模控制在17963公顷以内,城乡建设用地规模控制在13838公顷以内。调整后,普宁市的耕地保有量、基本农田保护面积、建设用地总规模和城乡建设用地规模等各项指标均保持不变。
《方案》涉及调整地块调整前后土地利用总体规划图(局部图)





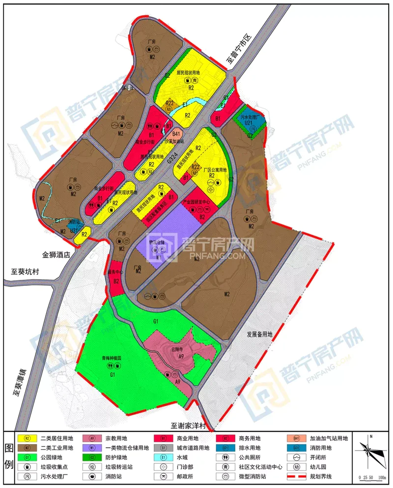
据《普宁市青梅产业园控制性详细规划》显示,项目地坐落在普宁马鞍山农场,规划建设用地规模为120.87公顷(1813.05亩),人口规模约8900人,将打造集青梅加工生产、技术研发、旅游观光为一体的现代产业园。期待早日建成,实现普宁青梅产业的跨越式发展!