普宁房产网

 0663-2559559

房产消费一站式服务平台

images/top_img.jpg
当前位置:普宁房产网>普宁市房产资讯

翘首以盼!2020年普宁首场土拍终于来了!

今天,小房君从揭阳市公共资源交易中心了解到,经普宁市人民政府批准,普宁市自然资源局委托揭阳市公共资源交易中心以网上挂牌方式出让六幅地块的国有建设用地使用权。其中三宗住宅用地,一宗工业用地,两宗批发零售用地,总出让面积106968平方米(160.452亩),总起拍价88855万元。现将有关事项公告如下:



宗地编号:PN2020001


宗地坐落:普宁市新光南路东侧、立新路南侧
宗地面积:21050平方米
起始价:27500万元
土地用途:城镇住宅用地兼容零售商业用地
出让年限:城镇住宅70年,兼容的零售商业40年

该宗地为“三旧”改造地块,位于市区流沙大道南侧(改造范围东至安东街、西至新光南路、南至“豪门夜酒店”南侧道路、北至立新路)。地上建筑物共10栋楼房,总建筑面积共45979.35平方米(不包括首层自建无房产证铺面、墙边围建物、天台建筑物、层高不足2.2米阁楼、临时附着物面积670.41平方米在内),土地房产权属涉及国有单位4个,私人业主187户。土地用途为城镇住宅用地兼容零售商业用地(其中城镇住宅用地70年,零售商业用地40年)容积率>1且≤5.9(其中住宅≤5.5,零售商业≤0.4),建筑密度≤50%(其中主楼≤30%)。




航拍图片




相关链接:

新安片区 | 首期改造项目方案已出炉!预计明年10月开工!


宗地编号:PN2020002


宗地坐落:普宁市流沙西街道赵厝寮路南侧、河滨路东侧
宗地面积:3535平方米
起始价:4505万元
土地用途:城镇住宅用地兼容零售商业用地
出让年限:城镇住宅用地70年,零售商业用地40年

PN2020002号地块高层建筑应按有关规范退缩多层建筑控制线且建筑间距应满足日照、消防等有关要求,并与西侧毗邻地块(地块一)统一规划建设;计容建筑面积为≤17675平方米(按计容用地面积3535平方米及容积率≤5.0计算),其中:零售商业用房建筑面积≤2000平方米、社区养老服务设施(必须于地面设置、建筑面积不少于100平方米、可与地块一合并设置);建筑控制线用地范围内可结合人防设施设置一至二层地下停车场地及配套设备用房住宅停车位配比为≥1辆/户,配建停车位应100%建设充电设施或预留建设安装条件。




航拍图片




相关链接:

曝光!普宁又一地块征地位置图来了!原来是...


宗地编号:PN2020007


宗地坐落:北环大道北侧、铁山兰路东侧
宗地面积:53933平方米
起始价:54000万元
土地用途:城镇住宅用地兼容零售商业用地
出让年限:城镇住宅70年, 兼容的零售商业40年

宗地地块竞得人须按要求配建幼儿园(幼儿园需配9个班级,用地面积不少于2430平方米,建筑面积不少于1814平方米),与住宅小区同步设计、同步建设、同步竣工、同步交付使用。在幼儿园建成达到粗装修使用标准并通过验收后,无偿移交给普宁市教育局。
宗地地块竞得人须建设公共设施用房,按照国家相关要求建设公共服务设施,须负责配建宗地地块北侧的市政道路,由政府相关部门协调具备施工条件后进行建设,道路须与项目同步建设,同步投入使用。




航拍图片




相关链接:

后续来了!普宁又一地块征地位置曝光!竟是......

期待!铁山兰路即将进入建设阶段!网友猜测:为土拍而做准备?

实探!普宁某地块正在平整,难道有大动作?


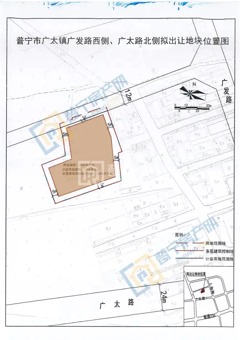
宗地编号:PN2020003


宗地坐落:普宁市广太镇广发路西侧、广太路北侧

宗地面积:3890平方米

起始价:230万元

土地用途:工业用地

出让年限:50年


宗地编号:PN2020004


宗地坐落:大健康产业园内、英歌山大道南侧
宗地面积:11242平方米
起始价:910万元
土地用途:商业服务业设施用地(批发零售用地)
出让年限:40年


宗地编号:PN2020005


宗地坐落:大健康产业园内、英歌山大道南侧
宗地面积:13318平方米
起始价:1710万元
土地用途:商业服务业设施用地(批发零售用地)
出让年限:40年


本次出让的地块

将会吸引哪些开发商的青睐呢?

欢迎底部留言

与小编互动!


合作商家广告投放热线:0663-2559559

合作商家

友情链接

普宁网络公司 普宁网站建设 广东省国土局 普宁网上办事大厅 普宁市市场监督管理局 普宁国土局 普宁信访局 普宁市政府 揭阳房产网
在线
咨询
热门
资讯
新房
一览
关注
微信
关注微信

关注房产微信

获取更多优惠