小伙伴还记得去年北二环土拍的那块地吗?当时成为普宁楼市最火的话题,也是茶余饭后,地产界朋友询问最多的话题。可惜虽经过8轮竞拍,最后还是以流拍收场。有很多小伙伴都在询问什么时候重新土拍?就在今天,小房君从揭阳市公共资源交易中心了解到,该地块终于重新挂牌出让了!起拍价3.5亿,起拍楼面价2372.94元/㎡,具体公告如下:
宗地编号:PN2020006
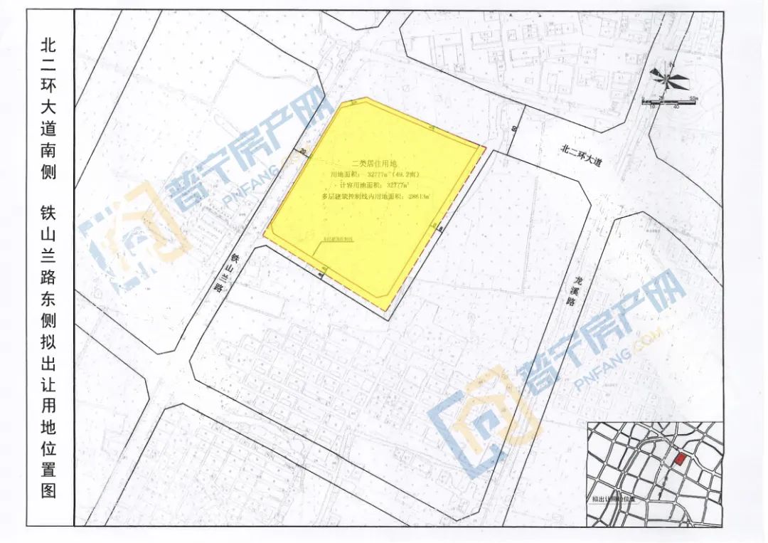
宗地坐落:
宗地面积:32777平方米
起始价:35000万元
土地用途:城镇住宅用地兼容零售商业用地
出让年限:城镇住宅70年, 兼容的零售商业40年

该地块须按相关要求配套设置物业管理用房(配建、建筑面积不小于80平方米)、社区警务室(配建、建筑面积不小于200平方米)、公共卫生间(配建、建筑面积不小于60平方米)、垃圾收集间(建筑面积不少于60平方米)、社区养老服务设施(必须于地面设置、建筑面积不少于500平方米)、微型消防站(建筑面积不少于90平方米)、居民健身设施(配建、建筑面积不少于200平方米)、配电房(建筑面积不少于60平方米,配建于底层或负一层)、水泵房座(设置于建筑物内时,需采取减震防噪措施)等配套公共服务设施;多层建筑控制线用地范围内可结合人防设施设置一至二层地下停车场地及配套设施用房,住宅按每户不少于一部配套停车位(含地面停车场),地面室外停车位数量不应超过占总停车位数的10%,室外停车场应集中设置,并进行绿化处理,配建停车位应100%预留建设充电基础设施的安装条件。

航拍北二环地块
航拍图片 据小房君了解,该地块平整,位于北二环旁,旁边铁山兰路未完成水泥路面化,道路可直通环城北路,交通便利。周边教学资源丰富,毗邻普宁华美育才学校(新寨校区)、斗文中学、溪心小学等。但地块周边自建楼居多,宗地面积不足50亩,位于普宁市区偏东北方向,周边最近的楼盘平安里(楼盘详情户型图相册地图)直线距离1.2公里,距离新项目丽景苑直线距离1.1公里。 根据《普宁市北二环(环城北路、环市东路)两侧重点区域控制性详细规划》里曾提到,将以北二环大道为主线,以大型公共服务设施与开敞空间为节点,形成商业金融服务中心,创造符合城市发展趋势,具有新时代风貌的城市景观,将规划区打造为现代都会区,可见未来发展前景大好,该地块为北二环片区的第一块土拍地块,此次二度拍卖会吸引哪些开发商的青睐呢?让我们拭目以待!







