近日,普宁市自然资源局发布了普宁市北部中心水厂厂区工程(一期)建设工程设计方案公示,具体内容如下:


建设工程设计方案公示
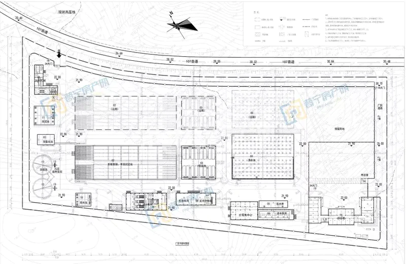
1、建设单位:普宁市供水管理中心
2、项目名称:普宁市北部中心水厂厂区工程(一期)
3、项目位置:洪阳镇富袋村
4、用地面积:62894㎡
5、建设规模:建筑面积8125㎡




普宁市北部中心水厂效果图

普宁市北部中心水厂位于洪阳镇富袋村,项目占地面积62849平方米,总建筑面积13932平方米,计划总投资69462万元。
在今年政府工作报告中曾提到,全力推动水资源优化配置工程,加快推进北部中心水厂建设,推进实现与揭阳供水系统并网,解决人民群众多年盼望、梦寐以求的饮水用水问题。
北部中心水厂是我市的重点项目之一,是今年我市的头号工程,更是普宁人民多年期盼和广泛关注的重要民生工程,工程建设的意义重大。愿早日建成投入使用!