
近日,普宁市燎原街道社区卫生服务中心住院综合楼及相关配套设施建设工程设计方案公示,具体内容如下:

建设工程设计方案公示
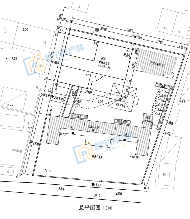
1.建设单位:普宁市燎原街道社区卫生服务中心
2.项目名称:住院综合楼及相关配套设施
3.项目位置:燎原街道社区卫生服务中心用地范围内
4.建筑占地面积:673㎡
5.建筑层数:六层
6.建设规模:总建筑面积4362㎡
7.建筑高度:23.95M


规划设计说明
革命老区健康扶贫工程(普宁市燎原街道社区卫生服务中心住院综合楼扩建工程及相关配套设施)包括1栋住院综合楼及相关辅助用房,具体设置中医馆、住院部、公卫办公、发电机房、地下水泵机房、地下消防水池、室外给排水、地坪、路灯、绿化、大门、围墙等,总建筑面积约4362㎡。
1、拟建6层住院综合楼,建筑面积约3880㎡,首层为中医馆,二~五层为住院部,六层为公卫办公。
2、拟建地下室,包括:发电机房、水泵房、消防水池、配电房等建筑面积约393㎡。
场地竖向设计:
1、原室外地面提高0.45米作为本综合楼室内地面标高。
2、本综合楼底层层高为4.5米,2~6层层高均为3.8米,建筑总高度为23. 95米。
3、楼梯间上屋面,层高为4米。
航拍图片





结语 今年政府工作报告中曾提到大力发展卫生医疗事业,普宁市燎原街道社区卫生服务中心住院综合楼扩建工程及相关配套设施的建设,能有效改善门诊就医环境,方便人们就医就诊,更有利于进一步改善我市基层医疗卫生条件,补齐公共卫生设施短板,提升医疗服务水平,推动卫生事业健康发展。期待早日启动建设,为建设“健康普宁”做出积极贡献!
