12月土拍来了!普宁三宅地出让,最高楼面价达3293.1元/㎡!
今天,小房君从揭阳市公共资源交易中心了解到,经普宁市人民政府批准,普宁市自然资源局以网上挂牌方式出让三幅地块的国有建设用地使用权。三幅地块均为城镇住宅用地,总出让面积11573平方米(约17.36亩),总起拍价11290万元,其中一地块楼面价高达3293.1元/㎡。现将有关事项公告如下:

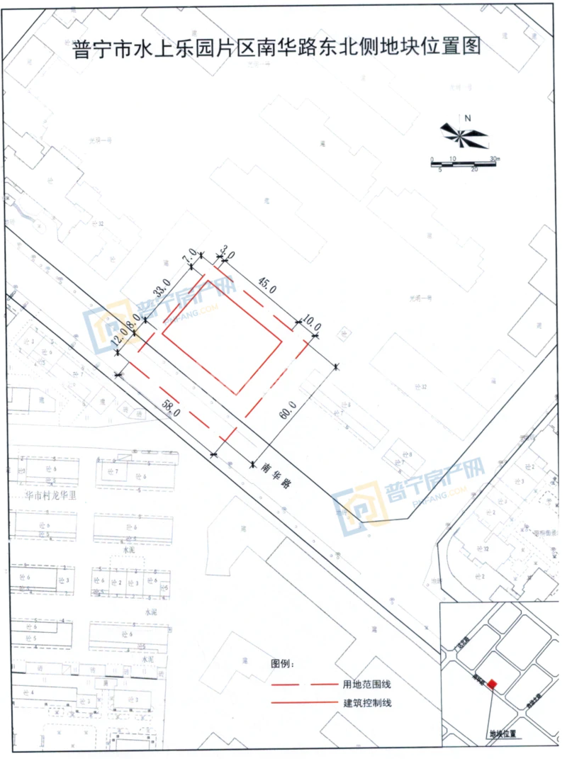
宗地坐落:南华路东北侧、光明花园小区东南侧
宗地面积:3480平方米
起始价:5730万元
出让年限:住宅70年,商业40年
土地用途:城镇住宅用地兼容零售商业用地


PN2020012地块计容面积为≤17400平方米(按计容用地面积3480平方米及容积率≤5.0计算),其中:零售商业用房建筑面积≤1000平方米、物业管理用房(建筑面积不少于200平方米)、配电房(建筑面积不少于60平方米)、垃圾收集间(建筑面积不少于20平方米)、消防控制室(建筑面积不少于50平方米);建筑控制线用地范围内可结合人防设施设置一至二层地下停车场地及配套设备用房。住宅停车位配比为≥1辆/户,配建停车位应100%建设充电设施或预留建设安装条件。


宗地坐落:普宁大道南侧、凤凰山公园北侧
宗地面积:4012平方米
起始价:2900万元
出让年限:70年
土地用途:城镇住宅用地


PN2020013号地块须按相关配套设置物业管理用房(建筑面积不少于100平方米)、配电房(建筑面积不少于40平方米)、消防控制室(建筑面积不少于40平方米)、垃圾收集间(建筑面积不少于50平方米)、社区养老服务设施(必须于地面设置、占地面积不少于100平方米、建筑面积不少于100平方米)等配套公共服务设施。

据小房君了解,该地块位于城市公园项目内,项目涵盖超250亩住宅用地以及528亩的凤凰山生态文化旅游项目,且规划要求配建一所九年一贯制义务教育学校(暂定名“凤凰城学校”)。

宗地坐落:河滨南路东侧、南环大道北侧
宗地面积:4081平方米
起始价:2660万元
出让年限:70年
土地用途:城镇住宅用地


PN2020014号地块须按相关配套设置物业管理用房(建筑面积不少于100平方米)、配电房(建筑面积不少于40平方米)、消防控制室(建筑面积不少于40平方米)、垃圾收集间(建筑面积不少于50平方米)、社区养老服务设施(必须于地面设置、占地面积不少于100平方米、建筑面积不少于100平方米)等配套公共服务设施。
本次出让的地块
将会吸引哪些开发商的青睐呢?
敬请期待12月28日的土拍结果!