今天,普宁市金泰房地产开发有限公司办公商业综合楼建设工程设计方案公示,拟建1栋多层办公商业综合楼,规划为环境优美、设施配套完善的办公商业。具体内容如下:

建设工程设计方案公示
1.建设单位:普宁市金泰房地产开发有限公司
2.项目名称:办公商业综合楼
3.项目位置:普宁大道南侧、赤水林场西侧
4.用地面积:1495㎡
5.建设规模:1幢6层办公商业综合楼、1层地下室,总建筑面积4139.84 ㎡(其中地上3289.00㎡,地下850.84㎡)。


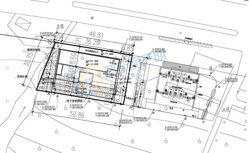
规划设计说明
一、本图为普宁市金泰房地产开发有限公司金泰实业综合楼总平面图,本次规划报建拟建1栋多层办公商业综合楼,地下设一层车库
二、现状情况:本项目建设用地位于普宁市普宁大道南侧、赤水林场西侧
三、规划目标:规划为环境优美、设施配套完善的办公商业。
四、总体规划布局及其内容:
1. 布局
项目结合城市规划统一对建筑、小区路及小区绿化、配套设施进行合理布置。
①建筑物层高:首层大堂为3.8米,二至三层层高为3.6米,四至五层层高3.9米,六层层高为3.0米,室内外高差0.2米
②设置一层地下车库,满足停车需求。
2. 其他配套设施:
首层设置公用变配电房,地下设置弱电间、生活水池及泵房、消防水池及泵房、垃圾收集间等配套设施。
(以上信息来源普宁市政府网站)
据小房君了解,此次公示的地块为2018年6月28日出让的PN2018030地块,最终以853万被普宁市金泰房地产有限公司拍下,楼面价2593元/㎡。该地块为商服用地,须按商业街设计要求进行。 普宁大道是普宁的大动脉,对接市区的各主要干道,始于国道324线(普惠高速池尾(楼盘详情户型图相册地图)出入口),终于汕头市潮南区陈店镇与陈沙公路相接。沿途有普宁二中学校、普宁市中医院、康美普宁中药城、普宁高铁站等配套项目。普宁大道作为普宁城市发展规划“一轴一带”重点开发地带之一,对扩大普宁城市扩容提质具有重要的意义。如今又将迎来一栋环境优美、设施配套完善的办公商业综合楼,让我们一起期待未来的发展吧。



