为提高我省农房建设水平,推动乡村建筑风貌提升,近日广东省住房和城乡建设厅组织编制了《岭南新风貌·广东省农房设计方案图集(第二册)》,各地可结合当地实际推广应用,也可参考借鉴和组织编制适合当地需求的农房图集,以供广大村民选用。

潮汕民系农房简介
1. 潮汕民系基本情况
1.1 自然地理特征 潮汕地区主要包括今汕头、潮州、揭阳等市,位于广东省东北角,与福建省漳州市接壤,东面隔海与台湾相望。其地势西北高而东南低, 西北莲花山脉横亘,西南、东北有大南山(楼盘详情户型图相册地图)和凤凰山阻隔,山脉间有韩江、榕江、练江三大河及其支流冲积形成的河谷平原,土地肥沃,东南面是广袤无边的南海, 形成一个内陆相对封闭,海岸线漫长的地理小区域。从揭阳北部开始,经过普宁、潮阳、惠来,进入海丰,是潮汕水系与珠江水系的分水岭。该区气候属南亚热带季风气候,高温多雨、雨热同季,酷热期短,有台风、“龙船水”、春旱、秋旱等气象灾害。 潮汕地区区位图 1.2 历史人文信息 潮汕地区毗邻福建,人口来源一部分为中原人口南迁,多从河套以东(今山西省)取道福建沿海,定居一段时间后再逐渐迁入潮汕,故称“福佬”;另有一部分沿内陆江西一带进人潮汕,被称为“河佬”。两宋时期以福建理学为代表的儒家文化在潮汕地区逐渐繁荣,至明代后期达到鼎盛,彰显崇宗与教养的祠堂建筑兴起。由于地理环境相对封闭,致使其文化中渗入的中原正统文化色彩得以相对稳定地传承下来。同时,潮汕地少人多,需通过精耕细作提高单位土地产量来养活更多人口,进而培育出精细的民系性格,反映在祠堂等建筑的精雕细刻和潮汕饮食的精制细作。明清以后,潮汕人向海外开拓,潮汕成为海上丝绸之路的重要站点,海外文化折射回桑梓故园。长期出海冒险谋生的经历使潮汕人有对未知风险的敬畏感,表现为多神信仰和虔诚祈福,多神崇拜也成为了潮汕民系的鲜明特点。 1.3 生活方式变迁 新中国成立后,潮汕乡村和全国其他地区一样,曾采用以生产队为组织形式的农业集体经济模式,农业生产工具和生产设施集中存放和使用,农村房屋功能以居住生活和粮食杂物存储为主。改革开放后,耕地分产到户,农业生产工具的存放和农作物晾晒成为农村房屋功能的重要组成部分。随着改革开放的深入和商品经济的发展,潮汕地区工商业得到快速发展,农村经济发生了巨大变化,特别是2000 年以后,潮汕农村耕地逐步被开发为各式加工厂,农民利用自家房屋纷纷办起了家庭作坊。如汕头市澄海区,农民普遍利用自家房屋开办塑料玩具等产业的各类家庭作坊,农村房屋功能逐步转变为以低层作为加工场地,留最顶的1-2 层作为居住生活空间。另外,随着耕地减少和城镇化发展,农村务农人口也逐年递减,潮汕农村传统农业经济逐步被生产加工业所取代,农村居住空间逐步加入作坊生产空间,这也成为当地农村房屋越盖越高的重要原因之一。 2. 潮汕民居调研情况 2.1 传统民居的形态研究 2.1.1 整体格局 潮汕地区主要位于粤东韩江、榕江和练江三角洲冲击平原,土地相对平坦,传统民居群体以行列围合式布局为主。一般是由下山虎、四点金和从厝组合成三壁连、驷马拖车等规整的大型宅院。随着人口增多,就在大型宅院旁边另建小型的下山虎(爬狮)、四点金等民居,并往往延续原宅院肌理,按梳式方法进行布置,最后形成行列围合式与梳式相结合的村落布局形式。有些商贸型村落形成多姓氏以祠堂为中心的组团型行列式大型村落,也有些村落受地形限制或沿河流发展为带型行列式村落。 调研发现,潮州地区地少人多,土地资源紧缺,村庄规模普遍较大且建筑密集。现状农村建房多是拆旧建新或建在2000 年前后村集体分配的宅基地上。当时各村规划宅基地普遍为进深10-15m,面宽按各户人口而定,一般每人能分到1-2m,每排宅基地间规划3-5m 不等的通道,房屋以双拼或联排为主,大部分地区无高度或层数限制,整体布局呈规整的行列式,且建筑密度较高。近年潮汕各市县纷纷出台了农村住宅建设管理规定,普遍限制农村住宅在5 层以下(含)。根据对各村宅基地规划和农村户人口数的基础调研,潮汕地区乡村宅基地面积以80-120 ㎡为主。 2.1.2 单体形态 传统潮汕民居的形式有“下山虎”“四点金”“单佩剑”“双佩剑”“三壁连”“百凤朝阳”和“驷马拖车”等形式,其中下山虎和四点金是潮汕最常见的传统民居单体形态。下山虎,又名爬狮,只有一厅二房,天井两侧又有厢房,俗称“伸手房”,与大房相接,整个平面近似于三合院。下山虎还有一种较为简略的形式,大门侧开,占去一侧厢房的位置,剩下一侧厢房,俗称单爬狮。再简单一些的,则厢房也改为单泻水屋顶的廊屋。下山虎以大厅作为重心,祭祖、待客、家人的聚会和用餐都在这里进行。而房间除了作卧室,一般还兼有库房之用。 “下山虎”平面示意图 四点金比下山虎多一进门厅和门厅两侧的门楼间“下房”。其天井两侧的厢房有的开敞,称为南北厅,作为一般家庭活动和常规会客之用。有的南北厅两端各有两间称为“阁仔”的小房,做为厨房的称“八尺房”,做为柴草房的称“厝手房”。平面结构看,四点金是由相向的两个一厅二房构成,整个建筑平面近似于北方的四合院。 “四点金”平面示意图 2.1.3 材料构件与细部装饰 潮汕民居构件繁多,并且多注重装饰,材料运用上有贝灰、三合土、砂石、杉木、花岗岩、陶瓷等,装饰技艺有木雕、石雕、嵌瓷、灰塑和彩绘等。细部装饰构件主要集中在凹门楼的彩绘和灰塑墙屏,屋脊的嵌瓷和灰塑,五行山墙的灰塑和嵌瓷,窗框的彩绘和灰塑,梁架的木雕和彩绘等等。 2.2 当前民居的现状问题 2.2.1 人居环境问题 潮汕地少人多,自古以来乡村地区已特别注重集约利用土地,形成了小街巷大村落密集式布局的村落形态。现代农村宅基地规划与分配中各家各户更是以能分配到最多的土地为首要目标;村民建房也是普遍占满宅基地,争取最大建筑面积,甚至二层以上还要尽可能出挑,形成许多窄巷密屋式联排新村,村内基本无公共活动空间。因此,当前潮汕乡村人居环境的主要问题有:一是巷道狭窄,难以满足村民机动车出行需求;二是旧村雨污排水系统先天不足,垃圾收集设施配置不完善,造成卫生环境相对较差;三是村民为了追求建筑面积最大化,在新村建造许多通风采光较差,消防安全隐患突出的握手楼;四是新村普遍缺乏公共活动空间或公共绿地及相关配套设施。 2.2.2 单体建筑问题 潮汕地区传统民居单体主要存在的问题有:一是建筑功能和布局难以适应村民现代居住生活的需求。如传统民居中只有客厅没有餐厅,没有厕所,传统厨房的柴火灶台不满足现代厨房等基本需求。二是传统民居往往为单层且功能房间较少,难以满足现代家庭分房居住的需求;三是传统民居中厅堂开放,房间门窗密闭性相对较差,难以满足村民安装空调等现代生活设备的需求。 潮汕地区新建民居的主要问题有:一是为了增加建筑面积,多为占满宅基地面积进行建设,建筑通风采光效果较差,消防安全隐患较大;二是建筑外观求新求异,不考虑与周边建筑协调或传统建筑文化的传承,建筑风貌杂乱无章,缺乏地域特色;三是建筑高度控制不严,不少地区有6-8 层甚至10层以上的民房,对风貌控制和消防安全形成不利影响。 2.2.3 材料构件与细部装饰问题 潮汕地区传统民居材料、构件和细部装饰的保护与新建民居对这些元素的传承如今面临的主要问题有:一是传统材料难觅或价格昂贵(如贝灰、植物彩绘原料等);二是传统工匠不多、工艺技术成本较高,如传统木雕、石雕、彩绘和嵌瓷等;三是目前潮汕地区乡村建成的新民居普遍为方盒子贴瓷砖房,村民普遍对传统民居装饰符号运用的意识不强或不感兴趣,塑造具有地方特色的新民居缺乏动力。 3 岭南新民居的方案对策与要素梳理 3.1 既有民居 3.1.1 人居环境的更新整治 人居环境更新整治应从村庄规划入手,主要是充分挖掘、传承村庄优秀历史文化,整治改造以“原真性保护+ 现代性活化+ 景观性提升”为原则,通过重构历史场景、优化公共环境、提升文化内涵、嵌入现代功能等手段,激活村庄内部空间,进而达到提升人居环境的目标。 一是挖掘与整治村庄公共空间。整治村口、古树广场、健身广场、祠堂广场等公共空间,适当配置休息和健身设施,变破败消极空间为整洁活力空间。 二是梳理街巷、完善设施。通过拆违建、整环境、补设施等手段激活巷道空间,梳理出原有街巷网络和排水系统,补充生活设施,适当恢复部分历史街巷的原有卵石路或石板路。 三是见缝插绿式增加村庄内部绿化。重点利用“水边、路边、宅边”进行绿化种植,植物配置遵循本土化、作物化和四季多彩化原则,形成层次丰富、绿量饱满、色彩丰富的乡村景观。 3.1.2 单体建筑的翻新改造 单体建筑翻新以低成本、微改造、显特色为原则,通过拆除民房外立面的违章搭建,改造山墙形式、门窗外框、阳台护栏、丰富层间线等形式,并嵌入传统民居构件元素,达到外立面风貌凸显潮汕传统建筑文化、彰显地方民居特色的目标。而传统建筑的改造主要在于活化利用,减少空心化现象,以及在大型宅居内拆除乱搭乱建,杜绝人畜混居,导致气味难闻等现象。村民居住的大型宅居,要提升建筑内部功能品质,改造或增设卫生间、厨房等现代功能空间,改善房间气密性,考虑空调的设置,满足现代生活起居需要。 3.1.3 材料构件的符号植入 材料构件的符号植入基于对传统构件的认识、提炼、简化,以传统为根,以低成本、模块化、求神似、突特色为原则,将复杂的传统建构形式和工艺技术,转译为符合当地居民审美需求且富有地方特色的新民居构件符号。 3.2 新建民居 3.2.1 总体层面的秩序规划 新建民居规划须传承潮汕传统村落的布局形态,以行列式作为主要布局形式。其中,纯行列式适用于规整平坦的冲积平原地区,交错行列式适用于用地不规整或受河流等限制的平原地区,扇形行列式适用于用地相对狭窄的丘陵地区(如图10)。新建民居总体布局还应注意多个组团的灵活组合,以便营造活泼灵动的村落空间形态。另外,在传承传统村落布局形态时须注意以下几方面内容。一是适当加宽内部街巷,确保多层建筑拥有良好的通风采光,并适应居民机动车出行的需求;二是适当增加公共活动空间和公共绿地;三是配置完善的基础设施,特别是应设置合理的雨污分流系统和垃圾收集系统。 3.2.2 单体层面的形态塑造 潮汕新民居形态塑造应从传统民居中汲取灵感,并充分结合现代潮汕村民的生产生活需求进行功能组合和优化。 首层平面以客厅为中心,“庭院- 客厅- 餐厅- 厨房”为基础序列,楼梯间、卫生间和老人房为必备空间,与客厅须有良好的连接,车库和后院为可选空间并一般与厨房或餐厅连接,厅餐厨梯房卫面积之比约为7:4:2:3:4:1。 立面形态“首层门楼- 各层露台”形成阶梯退台式布局,有利于各楼层的通风采光,整体立面分段尺度比例关系约为屋顶:四层:三层:二层:首层门楼:勒脚=1.5:6:5.5:5.5:5.5:1 3.2.3 细部层面的精神提炼 潮汕新民居细部从传统民居构件中提取、简化、转译,并进行模块化运用,形成“潮汕新八点”,分别是凹门楼、花屋脊、小花窗、波纹楣、漏花墙、五行山墙、五行照壁和筒板灰瓦(即筒瓦抹灰压板瓦)。















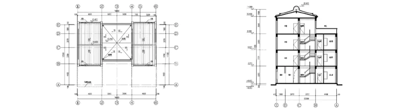
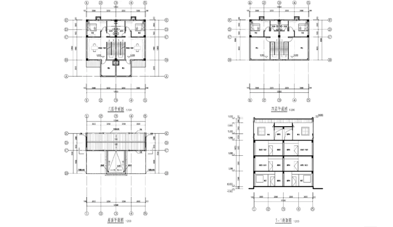
潮汕新建民居设计方案一
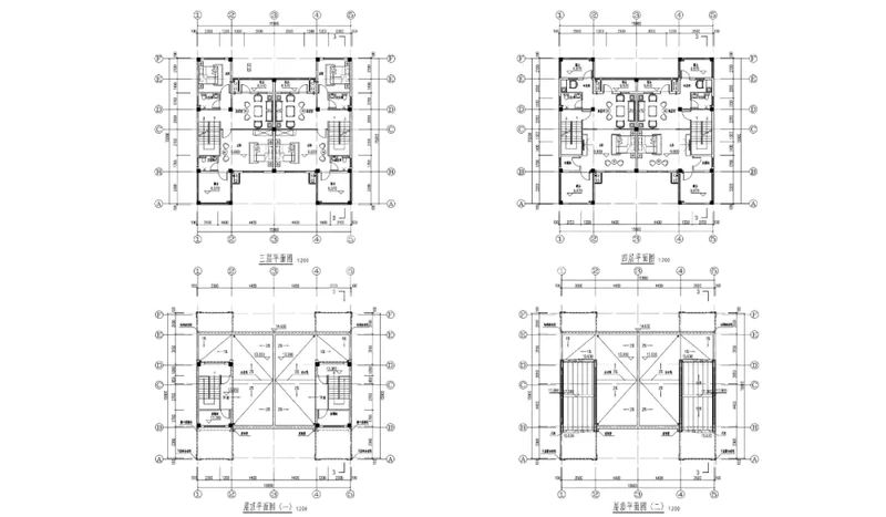
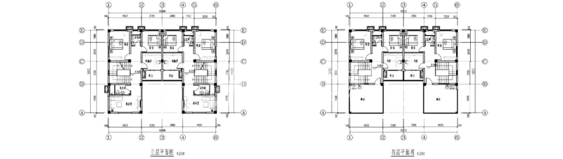
潮汕新建民居设计方案二 潮汕新建民居设计方案三













