近日,普宁市第一幼儿园北侧教学楼改扩建工程设计方案公示,具体内容如下:

建设工程设计方案公示
建设单位
普宁市第一幼儿园
项目名称
普宁市第一幼儿园北侧教学楼改扩建工程
项目位置
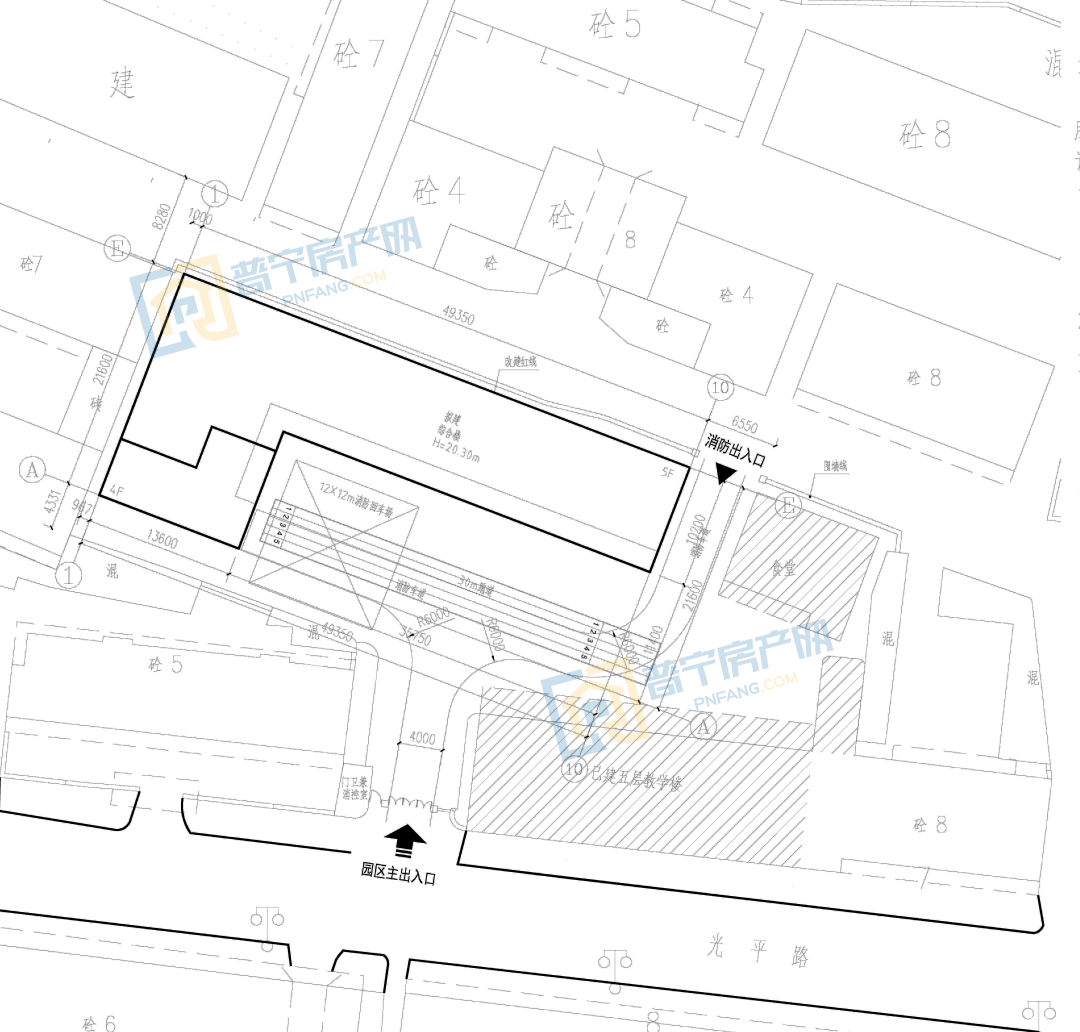
普宁市第一幼儿园用地范围内
建筑占地面积
659㎡
建设规模
1幢5层综合楼,总建筑面积3163㎡



航拍图





据了解,为加快公办幼儿园建设,切实解决我市当前普惠性幼儿园学位不足,优质教育资源配置不均衡等问题。项目规划建设一幢五层综合楼,首层为4米,建筑总高度21.5米;主要建设内容包括:土建、安装、室内装饰、水电安装及相关配套工程;综合楼配备:活动室、寝室、盥洗室办公室、储藏室、财务室、教具制作兼广播室、医疗保健室、党员活动室、教研室、园务室、晨检厅、多功能室、设备间、消防出入口、跑道等基础配套设施。概算总投资866.03万元。目前北侧教学楼已拆除。该工程已由广州穗科建设管理有限公司中选。
普宁市第一幼儿园

普宁市第一幼儿园创办于1956年9月,系普宁市教育局直属管理的全日制示范性公办幼儿园。幼儿园师资队伍雄厚,具有先进的办园理念,保教设备、设施配套齐全。我园先后通过各类相关评审,获得“广东省安全文明校园”、“广东省幼儿教育课程改革试点园”、“广东省学前教育协会团体会员”、“广东省教育学会学前教育专业委员会理事单位”、“揭阳市一级幼儿园”、“揭阳市语言文字规范化示范学校”、“揭阳市女职工文明岗”等荣誉称号。
小编结语

随着普宁市第一幼儿园扩建项目的实施,将进一步整合优质教育资源,进一步提升园区基础设施和硬件配套条件,也能缓解周边幼儿入园难的问题,促进幼儿身心全面健康发展。