广告
纵观全球知名豪宅区,都存在一个共同的现象:豪宅跟着城市公园走。从纽约中央公园、伦敦海德公园、东京新宿御苑,再到香港维多利亚公园,它们不仅是城市的生活蓝本和坐标原点,更凭繁华、静谧共享的稀缺人居天赋,让公园周边的房子,成为豪宅的代名词。



100年前,美国人在全球金融区——曼哈顿,建了一座340公顷的公园,这个巨大的绿色空间就像是沙漠里的一片绿洲横躺在曼哈顿中心。如今,这块绿地造就了全球的房价高地同时开启了全新的人居模式,孕育了一大批闻名世界的房产,中央公园西15号、ONE 57等繁华里的公园住区俨然成为全球公园住区的典范。

维多利亚公园是香港最大的公园,建于1955年,公园南面的入门处矗立着维多利亚女王铜像。位于铜锣湾之填海区上,南背渣甸山,北隔维园道与铜锣湾避风塘毗邻,是香港市中心最大的一个公园。如今,维多利亚公园因优美的环境和旖旎的风光,成为世界豪宅的“逐鹿场”,周边已成为被经济体包围的高端人士集聚之地。在稀贵的香港,留下了这一价才增长了1倍,由此可见景观对房价的带动。

悦府世家跟这些闻名世界的天价豪宅有着异曲同工之处。不舍繁华,但又得一方净土;不离都市,但又得自然生态,这大概是每一位购房者的置业梦想吧!
普宁悦府世家

中央公园人居大境
在《普宁市城市总体规划(2015-2035年)》中,普宁中心城区范围:西至揭普高速,东至厦深铁路,北至英歌山工业园,南至大南山(楼盘详情户型图相册地图)森林公园,面积为145.03平方公里,为普宁经济、政治、文化和科技中心,全市经济增长极和动力引擎。数据显示,普宁城区占普宁土地面积的9%,却已集聚了全市33%的人口和45%的GDP。
城市的发展,必然带来财富的井喷,与之密切相关的楼市,将成为投资者追捧的对象,尤其是位于城市中心的标杆项目,更是成为炙手可热的香饽饽。【悦府·世家】正居普宁城区中央,其南侧普宁大道为总规明确的城市主干道,可南眺大南山森林公园,西瞰莲花山公园,拥中心城区繁华、都市公园景观于怀中,聚合着区位多重优质资源和醇熟城市配套。居住在此,幸福感不言而喻。

位于【悦府·世家】西侧的莲花山公园,总面积约716亩,总投资1.5亿元,建设西北入口广场区、东入口广场区、百花园景区、山顶凉亭花园区、特色文化区、环园健身道等6大功能区,是普宁市区唯一的的山体公园,是市民健身、休闲、娱乐、观光的好去处,并进一步优化普宁市区人居环境。

从【悦府·世家】西侧小区大门步行数步可达莲花山公园,是真正意义上的私享景观,其良好的生态环境,富含氧离子空气,是普宁中心城区的“绿肺”,是生态舒居的理想场所。

参天绿树,郁郁葱葱,亭台景致,最美是那一道优美的弧线,在【悦府·世家】,咫尺美景,推窗见绿,如置身绿树花丛中,在家就能享受城市中心稀缺的山体生态景色。

每座城市中心的公园住区,都是这个城市彰显价值、闪耀之士的尊贵居住地,中央公园豪宅已成为精英阶层对居所的理想追崇。繁华与自然和谐共生,便捷与宁静高度统一,便是公园人居所展现的完美的生活状态。
同样,在普宁人眼中,公园旁的生活也是最值得憧憬的。占据普宁中心地段的【悦府世家】,拥享主城臻稀公园资源,构筑城市与生态的完美契合,Copy香港维多利亚公园生活方式,开启普宁高端公园城市宜居新时代,为未来城市人居带来的无限发展!

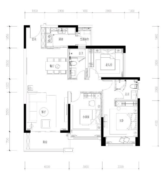
122㎡户型3+1房2厅2卫
*以上户型图涉及的尺寸、数据仅作示意参考,不作为开发商的销售承诺,具体权利义务以双方签订的《商品房买卖合同》为准!
八大价值
【入户玄关】
入户花园带景入户
【高能拓展】
高拓展高得房率,舒居体验
【南北通透】
南北通透,采光通风极佳
【南北双阳台】
阳光、清新空气全接触
【南向主卧】
采光良好,近距离拥抱自然
【主卧套房】
独立明卫+衣帽间,私密尊享
【大面宽客厅】
客厅通大阳台,景色入户来
【全飘窗设计】
延伸视觉宽度,体验闲适宽裕生活
105㎡户型3房2厅2卫
*以上户型图涉及的尺寸、数据仅作示意参考,不作为开发商的销售承诺,具体权利义务以双方签订的《商品房买卖合同》为准!
八大价值
【南北对流】
南北对流,动静相宜,方正大气
【干湿分离】
居家清爽洁净,助力健康生活
【超大厨房】
中西双厨,烹饪美味游刃有余
【超大客厅】
宽敞待客,亲朋聚会彰显气派
【餐客厅相连】
餐客一体,生活美食两不误
【阔景阳台】
超宽观景阳台,上层人生景致
【南向双卧】
大尺度开间,近距离拥抱自然
【全屋飘窗】
自带飘窗,邀明月星辰一同入梦
10月27日-28日
悦府世家接待中心
“欢乐周末·甜蜜时光”
活动强势来袭!
来访即可参与微信抽奖

(示意图)
榨汁机、养生壶、酸奶机
等你领回家!
现场还有更多惊喜等着你!

精美糕点、曲奇DIY、小提琴演奏(示意图)


活动期间转发本文章至盆友圈,
积攒30个即可在10月27-28日
到悦府世家接待中心领取精美礼品一份!
数量有限,送完即止!
悦府世家,接待中心已盛启!
诚意登记火热进行中!
普宁【悦府世家】
建面约105-190㎡新中式双园景府邸
恭候品鉴:0663-2857777
项目地址:普宁大道与大学路交汇处(莲花山公园旁)