良好的城市道路网系统是充分挖掘城市资源的战略措施,有利于城市的开发经营和城市总体规划的全面实施,同时完善道路下管线的铺设,也是城市建设和经济发展的重要基础设施,是城市环境保护的重要设施,是保证人体健康、防治水污染的重要保障体系。
近日,揭阳市生态环境局普宁分局发布了普宁市文竹北路延长线(北二环大道至勤建学校西侧)建设工程建设项目环境影响报告表受理公示(公示日期:2021年6月25日—7月1日)。项目计划总投资6899.64万元,预计2021年7月开工,并将新建1座桥梁,命名为文竹桥。具体内容如下:

文竹北路延长线
该项目南起北二环大道,北至勤建学校西侧道路,沿线与北二环大道、四条规划道路相交叉。道路呈南北走向,桩号总长约 1455.97m,红线内道路长度约 1425m,规划红线宽度为40m,道路等级为城市主干路,双向四车道,设计行车速度40km/h,采用沥青混凝土路面。主要建设内容包括道路工程、桥梁工程、管线工程、路灯、交通标志标线设施、绿化等。本项目计划总投资6899.64万元。本项目预计建设日期为2021年7月至2022年6月。






△道路现状图
道路横断面采用人、机、非,分离,并设有侧分带,整体景观效果较好,利于沿线单位、居民交通出入,有利于交通组织,提高行人与车辆之间的安全性,也能满足日常人车的通行需求,与已建的文竹北路断面保持一致,保证道路整体性。

△道路横断面
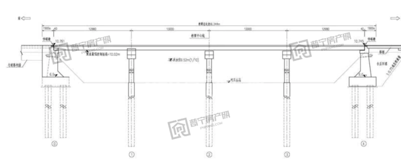
普宁市文竹北路延长线(北二环大道至勤建学校西侧)建设工程,文竹北路红线宽 40m,为城市次干道,沿线跨越流沙新河,道路桩号K0+197.888处需新建桥梁1座,命名为文竹桥。桥跨布置采用连续现浇板梁桥,桥跨布置为4×13m,右偏角 62°。

△桥梁立面图


△河道现状图




小编寄语

文竹北路南接北二环路,北连勤建学校西侧道路, 可缓解附近城市干道的交通压力,起到疏散城市主城区的作用。项目将按城市主干道改建,建成后可完善区域道路网络,改善普宁市交通体系,确保区域道路通行顺畅、便捷,必将加速实现普宁城市空间发展和城市化战略目标。