
今天,小房君从揭阳市公共资源中心了解到,普宁市第一幼儿园北侧教学楼改扩建工程公开招标,总投资844.71万元,将建设一幢五层综合楼,具体内容如下:

项目位于普宁市流沙西街道光平路,规划用地面积658平方米,总建筑面积3166平方米,建设一幢五层综合楼,首层为4米,建筑总高度21.5米;主要建设内容包括:土建、安装、室内装饰、水电安装及相关配套工程;综合楼配备:活动室、寝室、盥洗室、办公室、储藏室、财务室、教具制作兼广播室、医疗保健室、党员活动室、教研室、园务室、晨检厅、多功能室、设备间、消防出入口、跑道等基础配套设施。项目概算总投资844.71万元,其中建安工程费用785.00万元,本项目的建安工程招标控制价是7837757.49元。计划工期365个日历天。

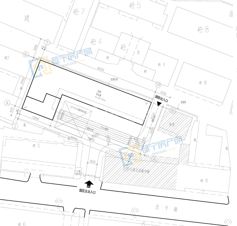
普宁市第一幼儿园北侧教学楼改扩建工程



今年4月30日,普宁市第一幼儿园北侧教学楼改扩建工程设计方案对外公示。据了解,为加快公办幼儿园建设,切实解决我市当前普惠性幼儿园学位不足,优质教育资源配置不均衡等问题,拟建设1栋5层综合楼,建筑面积约3163㎡,首层为幼儿园生活单元房、医疗保健室、教具制作室、财务室,二层为幼儿园生活单元房、园务室,三层为幼儿园生活单元房、办公室,四五层为办公室、多功能室、会议室、教师休息室等。本综合楼底层层高为4米,2~4层层高均为3.6米,5层层高为5.2米,建筑总高度为20.3米。目前北侧教学楼已拆除。





普宁市第一幼儿园

普宁市第一幼儿园创办于1956年9月,系普宁市教育局直属管理的全日制示范性公办幼儿园。幼儿园师资队伍雄厚,具有先进的办园理念,保教设备、设施配套齐全。我园先后通过各类相关评审,获得“广东省安全文明校园”、“广东省幼儿教育课程改革试点园”、“广东省学前教育协会团体会员”、“广东省教育学会学前教育专业委员会理事单位”、“揭阳市一级幼儿园”、“揭阳市语言文字规范化示范学校”、“揭阳市女职工文明岗”等荣誉称号。
结语

随着普宁市第一幼儿园扩建项目的实施,将进一步整合优质教育资源,进一步提升园区基础设施和硬件配套条件,也能缓解周边幼儿入园难的问题,促进幼儿身心全面健康发展。期待早日启动建设,满足适龄儿童学位需求!