近日,普宁市青梅产业园物流仓储建设工程、青梅加工用房建设项目建设工程设计方案对外公示,均位于马鞍山农场,将建设3幢1层物流仓库和1幢5层厂房,具体内容如下:


01
普宁市青梅产业园物流仓储建设工程设计方案公示
1.建设单位:揭阳中元现代农业产业园股份有限公司
2.项目名称:揭阳市普宁市青梅产业园物流仓储
3.项目位置:国道324线马鞍山农场路段东南侧
4.用地面积:43471㎡
5.建设规模:3幢1层物流仓库,1处垃圾收集点,总建筑面积21218㎡。



设计说明
一、规划依据:
1、《揭阳市城乡规划管理技术规定》
2、《建筑工程建筑面积计算规范》[GB/T50353-2013]
3、规划设计条件
4、用地规划红线图
二、用地位置:国道324线马鞍山农场路段东南侧范围内地块三
三、地块规划布局及其内容
1、总体布局:本项目拟新建3栋单层钢结构物流仓库,用地配套的垃圾收集点、微型消防站等公共服务设施。
2、建筑高度:三栋物流仓库滴水高度均为14.8m
3、交通组织:场区设置三个出入口,沿324国道路设置一个行人出入口及一个行车出入口作为地面车辆出入口,在西面区间路设置一个行车出入口及一个消防车出入口,另在区内设两个地下车库出入口。
4、物流仓库火灾危险性分类为丙类二项,耐火等级为一级
5、消防组织:区内设置4米消防车道,并在各个高层建筑的长边设置消防扑救操作场地,消防车道通过出入口与市政道路连接,满足消防规范要求。
02
普宁市青梅产业园青梅加工用房建设项目建设工程设计方案公示
1.建设单位:揭阳中元现代农业产业园股份有限公司
2.项目名称:揭阳市普宁市青梅产业园青梅加工用房建设项目
3.项目位置:国道324线马鞍山农场路段东南侧
4.用地面积:17007㎡
5.建设规模:1幢5层厂房,总建筑面积27396.75㎡。



普宁市青梅产业园

据小房君了解,此次公示的两个地块为2021年7月15日出让的PN2021005、PN2021006地块,均被揭阳中元现代农业产业园股份有限公司拍下,地块位于普宁市青梅产业园内。

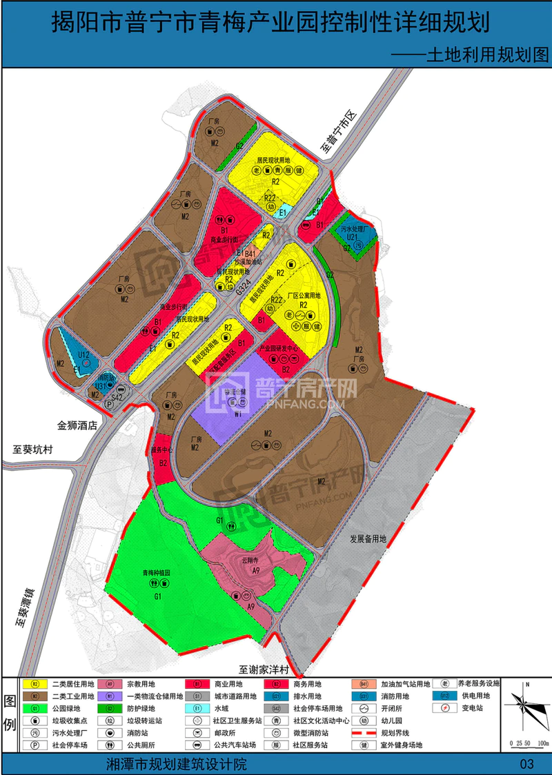
普宁市青梅产业园面积达267平方公里,范围包括马鞍山农场、高埔镇、大坪镇和后溪乡等4个乡镇场,产业园核心功能区位于马鞍山农场,首期规划建设用地200亩。青梅产业园于2019年被纳入国家现代农业产业园创建管理体系,并于2020年3月通过国家绩效中期评估。

今年1月,普宁市青梅产业园控制性详细规划获市政府批复,将打造集青梅技术研发、青梅简单加工包装、仓储物流、种植旅游观光、商贸为一体的现代产业园。