今天,普宁市自然资源局发布了关于普宁市鸿发投资有限公司“新华名园(楼盘详情户型图相册地图0663-2559559)”项目建设工程设计局部调整方案的公示。据悉,因进一步提升项目品质,优化设计需要,7#楼及8#楼设计方案进行调整,调整后设计方案为:7幢18层至32层商住楼、1幢2层老人活动中心、2层地下室,总建筑面积171586平方米(比原来增加建筑面积216平方米,用途为架空活动空间)。而户数也从708户调整为823户,增加了115户。项目规划为环境优美、设施配套齐全的Art-Deco风格住宅小区。具体内容如下:


关于普宁市鸿发投资有限公司“新华名园”项目 建设工程设计局部调整方案的公示
日前,我局收到普宁市鸿发投资有限公司关于要求批准“新华名园”项目建设工程设计方案局部调整的申请及相关资料。依照城乡规划管理的相关规定,现将有关事项公示如下:
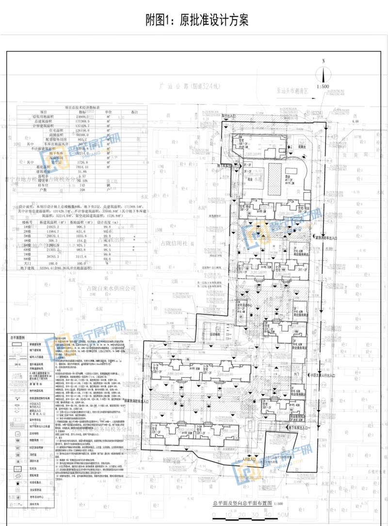
“新华名园”项目位于占陇镇占杨村广汕公路南侧,建设工程规划许可证列:建字第4452812020G001号。项目原设计方案(见附图1)为:7幢18层至32层商住楼、1幢2层老人活动中心、2层地下室,总建筑面积171370平方米。

1、取消原设计位于7#楼及8#楼之间的4层商业裙楼,仅保留东侧沿街裙楼商铺;
2、将8#楼由原设计单身公寓式住宅修改为套房式住宅;
3、将7#楼第1至第4层由原商铺用途修改为架空层、住宅。
调整后的设计方案(见附图2)为:7幢18层至32层商住楼、1幢2层老人活动中心、2层地下室,总建筑面积171586平方米(比原来增加建筑面积216平方米,用途为架空活动空间)。

普宁市自然资源局地址:流沙市区河滨北路(赵厝寮路段)
电子邮箱:pnzzjgh@163.com
公示网站:
http://www.puning.gov.cn/jypnzrj/gkmlpt/index
联系人:李先生 联系电话:2939978
普宁市自然资源局
2021年12月10日

规划设计说明
一、本图为普宁市“新华名园”总平面图,项目用地为:普宁市鸿发投资有限公司建设用地,拟建7栋高层住宅楼、1栋二层老年活动中心,1#、2#、3#、5#、6#、7#、8#楼为高层住宅楼,4#楼为老年活动中心。2#、5#、6#楼一层为架空花园和商业服务网点,二层为住宅和商业服务网点,三层以上为住宅;1#、3#楼一层为架空花园,二层以上为住宅;7#、8#楼一、二层为裙房商业及住宅,三层以上为住宅。
二、现状情况:
本项目建设用地北临国道324福昆线,东侧为立新路,地理位置优越,交通便利。
三、规划目标:规划为环境优美、设施配套齐全的Art-Deco风格住宅小区。
四、总体规划布局及其内容:
1、布局
项目结合城市规划统一对小区内建筑、小区路及小区绿化、配套设施进行合理布置。
(1)建筑物层高:商业服务网点一层层高5. 8m,二层层高4.5m;
1#楼共32层,其中一层3.6米,2-32层3.1米,面层厚度按0.1米计算,总高99.8米;
2#楼共30层,其中一层3.6米,2-30层3.1米,面层厚度按0.1米计算,总高95. 4米;
3#楼共32层,其中一层3.6米,2-32层3.1米,面层厚度按0.1米计算,总高99. 8米;
4#楼共2层,其中1-2层3.3米,面层厚度按0.1米计算,总高6.4米;
5#楼共31层,其中一层3.6米,2-31层3.1米,面层厚度按0.1米计算,总高98.5米;
6#楼共31层,其中一层3.6米,2-31层3.1米,面层厚度按0.1米计算,总高98.5米;
7#楼共30层,其中一层5.8米,2层4.5米,6-30层3.1米,面屋厚度按0.1米计算,总高94. 9米;
8#楼共18层,其中一层5.8米,2层4.5米,6-18层3.1米,面层厚度按0.1米计算,总高57.4米;
(2)主要小区出入口设置在东侧城市次干道上,结合小区主体建筑布置形成景观节点。
(3)设置二层地下车库,满足停车要求。
(4)车位100%预留充电桩建设安装条件。
2、其他配套设施:地上于2#楼一层局部设置社区服务中心,于5#、6#楼一层局部设置物管用房;1#楼一层设置治安联防站,消防控制及微型消防站位于7#楼一层;地下设置公用变配电房、发电机房、消防水池及水泵房等配套用房。
五、交通组织
设置二层地下车库,实行人车分流,设两个双车道车入口。