近日,《高埔镇月塘村营盘山片区单元控制性详细规划(修编)》和《普宁市循环经济生态园控制性详细规划修编》分别获得市政府批复并进行批后公示。高埔镇月塘村营盘山片区规划面积262亩,新增了中小学用地,功能定位为以中小学用地为主,兼具商住的综合小区;普宁市循环经济生态园规划面积503.3亩,地块统一调整为环境设施用地,有利于推动我市固废综合处理循环经济发展。一起来了解下:
01
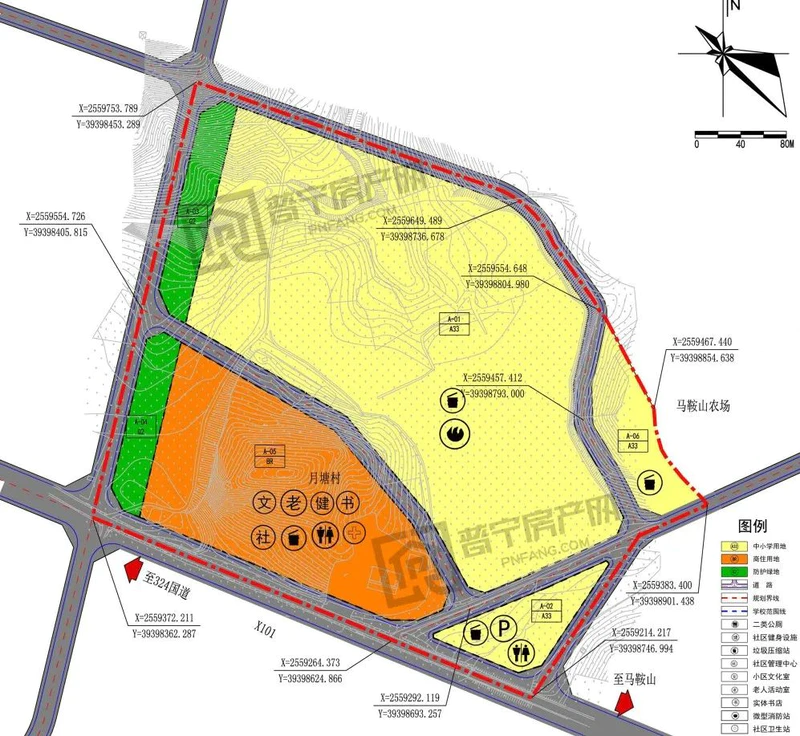
高埔镇月塘村营盘山片区单元控制性详细规划(修编)》批后公示

一、规划范围
本片区位于普宁市高埔镇月塘村内X101北侧,距离高埔镇政府约6.5公里,规划范围用地面积17.47公顷(262亩)。

二、规划调整内容
(1)用地调整
规划在A-01地块的东侧新增了中小学用地(A-06),其它地块保持不变。
(2)地块指标调整
A-01和A-02两个地块的容积率由≤1.5调整为≤1.9,其它地块指标保持不变。

三、功能定位
综合分析以上各种因素、依据,规划确定该地块功能定位为以中小学用地为主,兼具商住的综合小区。

四、道路系统
主干路:规划道路红线宽32米
次干路:规划道路红线宽20米
支路:规划道路红线宽16米

普宁市兴星学校

据小房君了解,本次规划的中小学地块为普宁市兴星学校建设项目,被列为《广东省2019年重点建设项目计划》,该校已于2018年备案通过。

02
普宁市循环经济生态园控制性详细规划修编(批后公示)

一、项目区位
规划区域位于揭阳市普宁市西南部、高埔镇音山径林场区域。规划区域环绕音山径水库南侧展开。园区距离普宁市区车行距离约40公里左右,距高埔镇车行距离约8.5公里左右。规划区域总面积为33.6公顷(503.3亩)。

二、主要调整内容
1、用地性质及规模调整
(1)用地性质调整。根据现行政策导向和开发趋势,在本次控规修编过程中也将对上版控规中的规划用地布局进行调整,将原BR(商住用地)、W2(二类物流仓储用地)、M2(二类工业用地)均调整为U2(环境设施用地)。
(2)用地规模调整。整体规划范围面积不变,各地块用地规模及占总建设用地比例根据方案进行调整。
(3)用地指标调整。用地指标统一调整为“环境设施用地,容积率为≥0.7且≤1.3,建筑密度≤60%,绿地率≤20%,建筑高度≤35米”。调整后方案的建筑规模等控制指标不低于上轮规划的控制指标。

2、路网及道路断面调整
(1)规划取消工业三路,即可增加计容用地面积,又不影响项目建设要求。

规划调整布局合理,符合项目实际,有利于更好满足省土地利用计划指标使用要求和园区建设需要,利于推动我市固废综合处理循环经济发展。
普宁市循环经济生态园

据小房君了解,普宁市循环经济生态园项目已列入2021年省重点建设项目名单,也是普宁“十四五”规划重点项目,总投资13.5亿,用地面积约1000亩,分三期建设。
