
近日,普宁市自然资源局又双叒叕发布了普宁市存量住宅用地情况表,这已经是去年以来第六次更新了。据了解,本次普宁市存量住宅用地项目总数95宗,总面积164.8653公顷(约2472.98亩)。
其中,未动工土地面积12.4066公顷(约186.1亩),已动工未竣工土地面积152.4587公顷(约2286.88亩),未销售房屋的土地面积139.1911公顷(约2087.87亩)。


据小房君统计,95宗地块中涉及多个在建楼盘项目,分别有:城市公园、水岸城、金泰城(楼盘详情户型图相册地图)、星河明珠湾四期(楼盘详情户型图相册地图0663-2559559)、保障性住房首期、珠宝城、嘉应华府、嘉润新城(楼盘详情户型图相册地图0663-2559559)、唐商中央花园、江景新城二期(楼盘详情户型图相册地图0663-2559559)、中骏云景府、凯旋城(楼盘详情户型图相册地图0663-2559559)、华美春天(楼盘详情户型图相册地图0663-2559559)、新城中心、方直君樾府、龙光御锦阳光等。
除了这些在建项目和一些个人地块外,今天小房君还统计了一些至今为止还未启动的存量住宅用地,具体如下:
俊嘉地块(水务局地块)

开发企业:普宁市俊嘉房地产开发有限公司
所在街镇:普宁市流沙北街道
具体位置:普宁市新河西路西侧,原普宁市水务局、引榕工程管理处办公址
住宅类型:普通商品房
土地面积:0.2734公顷(约4.1亩)
目前地块已拆除

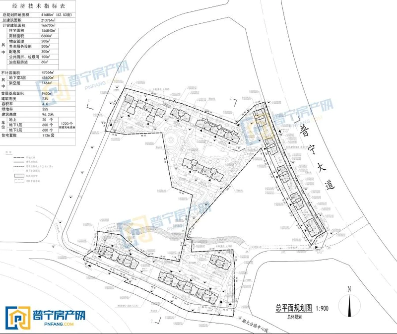
松雁地块(润泰花园)

开发企业:普宁市松雁实业投资有限公司
所在街镇:普宁市流沙南街道
具体位置:流沙南街道香员坑村、下架山镇水供塘村(普宁大道南侧)
住宅类型:普通商品房
土地面积:4.1685公顷(约62.53亩)

翔泰地块(翔景花园)

开发企业:普宁市翔泰地产有限公司
所在街镇:普宁市下架山镇
具体位置:下架山镇水供塘村(普宁大道东侧)
住宅类型:普通商品房
土地面积:2.0386公顷(约30.58亩)
金泰地块(金泰雅苑)

住宅类型:普通商品房
开发企业:普宁市金泰房地产开发有限公司
所在街镇:普宁市下架山镇
具体位置:普宁市下架山镇蛟池村(普宁大道南侧)
土地面积:0.9041公顷(约13.56亩)


开发企业:广东百美物流运输服务有限公司
所在街镇:普宁市下架山镇
具体位置:普宁市下架山镇水供塘村(普宁大道北侧)
住宅类型:普通商品房
土地面积:0.2781公顷(约4.17亩)

和百泰地块
开发企业:普宁市和百泰房地产开发有限公司
具体位置:塘塔路南侧、环市西路东侧
住宅类型:普通商品房
土地面积:4.0515公顷(约60.77亩)
星河明珠湾五、六、七、八期

开发企业:普宁市星宏房地产开发有限公司
所在乡镇:普宁市云落镇
具体位置:普惠高速公路南侧、寒妈水库西北侧
住宅类型:普通商品房
土地面积:合计60.6136公顷(约909.2亩),其中五期6.0309公顷(约90.46亩)、六期16.778公顷(251.67亩)、七期16.0732公顷(约241.1亩)、八期21.7315公顷(约325.97亩)
目前五期已入市,效果图曝光。

金湖玉苑
开发企业:流沙西街道赤水村委会生产生活安置楼
所在街镇:普宁市流沙西街道
具体位置:玉华南路西侧、普宁大道北侧(赤水村)
住宅类型:普通商品房
土地面积:0.9997公顷(约15亩)
斗文村生产生活安置用地

开发企业:普宁市流沙东街道斗文村民委员会生产生活安置用地
所在街镇:普宁市流沙东街道
具体位置:市北环大道两侧、塘塔路南侧、环市西路东侧
住宅类型:农村宅基地
土地面积:13.3911公顷(约200.87亩)