在今年政府工作报告中曾提到,将推进教育强市战略,实施中小学、幼儿园新改扩建项目30个,而在近日,小房君了解到普宁市第一幼儿园和普宁市流沙西街道中心幼儿园这两个改扩建工程迎来新进展,合计总投资2206.66万元,一起去看看吧。

1
普宁市第一幼儿园北侧教学楼改扩建工程





从现场航拍图可以看到,目前项目已开工,正有序建设中。项目总投资844.71万元,计划工期365个日历天。

据设计方案显示,拟建设1栋5层综合楼,建筑面积约3163㎡,首层为幼儿园生活单元房、医疗保健室、教具制作室、财务室,二层为幼儿园生活单元房、园务室,三层为幼儿园生活单元房、办公室,四五层为办公室、多功能室、会议室、教师休息室等。

据了解,普宁市第一幼儿园创办于1956年9月,系普宁市教育局直属管理的全日制示范性公办幼儿园。幼儿园师资队伍雄厚,具有先进的办园理念,保教设备、设施配套齐全。我园先后通过各类相关评审,获得“广东省安全文明校园”、“广东省幼儿教育课程改革试点园”、“广东省学前教育协会团体会员”、“广东省教育学会学前教育专业委员会理事单位”、“揭阳市一级幼儿园”、“揭阳市语言文字规范化示范学校”、“揭阳市女职工文明岗”等荣誉称号。
2
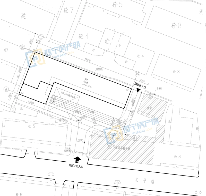
普宁市流沙西街道中心幼儿园改扩建工程





从现场航拍图可以看到,目前原教学楼已拆除,效果图抢先曝光。项目总投资1361.95万元,计划工期720个日历天。

据设计方案显示,项目占地面积3640㎡,拟拆除用地内建构筑物,在原有用地范围内建设新的12班教学楼、门房、活动场地及其他配套设施。

据了解,普宁市流沙西街道中心幼儿园开办于1993年10月,属公办、全日制示范性幼儿园。先后被评为或推荐为“ 揭阳市一级幼儿园 ”、“揭阳市绿色幼儿园”、“揭阳市平安校园”、“广东省特色幼儿园”、“广东省幼儿教育课程改革试点园”、“广东省学前教育协会团体会员园、实验基地及‘十一·五’、‘十二·五’课题园”、“广东省教育协会学前教育专业委员会理事单位”等。