




“志合者,不以山海为远”。近日,深圳市超卓工程有限公司就普宁市玉龙泉温泉酒店施工总承包项目与玉龙泉山庄完成签约,项目合同总价为12505.22万元。项目效果图也首次曝光,一起来了解下:

项目实景图


普宁市玉龙泉温泉酒店项目概况:

项目效果图
项目位于普宁市高埔镇下营村汤坑地段,总建筑面积14047.57㎡,建筑主要功能为温泉酒店,拟建酒店地上层数5层,地下室3层以及相关附属设施等。
承包施工范围包括但不限于:土石方工程、主体结构工程、室内外给排水工程、机电设备安装工程、通风与空调工程、室内精装修工程、防水工程、屋面工程、消防工程、电梯工程、道路工程、园林绿化工程等施工任务。
作为当地政府招商引资的重点项目之一,政府及业主方十分重视玉龙泉温泉酒店项目,要求各方紧密配合,将项目做精、做好。公司将该重点投入优质资源、派出经验丰富的房建总承包及装饰装修管理团队,以高标准、高质量的管控,严格履行项目合同与业主要求,并将该项目打造为超卓华南区域的绿色、精品、标杆项目。(信息来源:超卓工程)

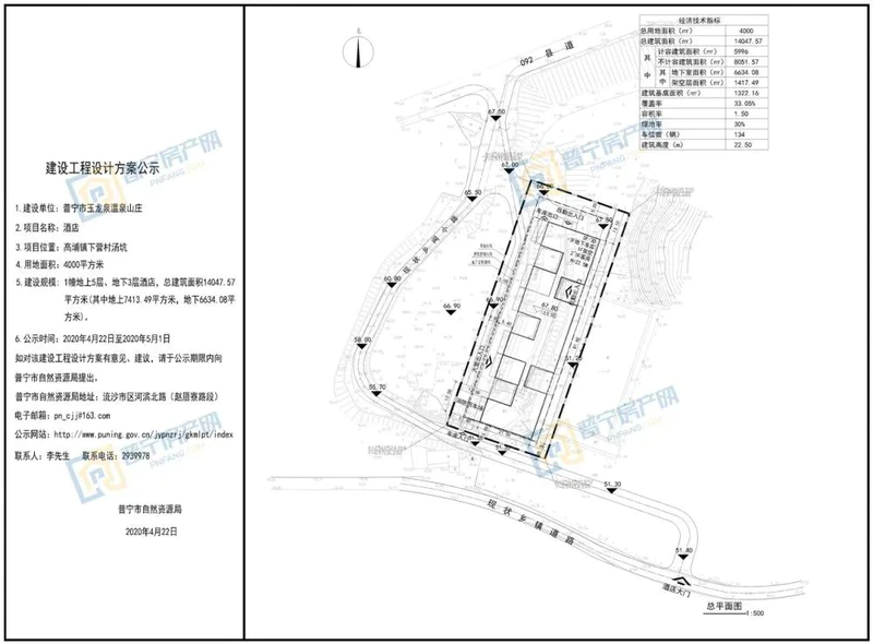
据普宁市玉龙泉温泉山庄酒店建设工程设计方案显示,普宁市玉龙泉温泉山庄将在高埔镇下营村汤坑建设玉龙泉温泉山庄酒店,用地面积4000平方米,将建设1幢地上5层、地下3层酒店,总建筑面积14047.57平方米,其中地上7413.49平方米,地下6634.08平方米)。建筑高度22.5米,容积率1.5,绿地率30%,车位数134辆。

据了解,普宁市玉龙泉温泉山庄于2013年4月12日注册成立,经取得用地、规划许可后,公司首先进行普宁市玉龙泉温泉山庄酒店建设项目的建设。项目用地已取得《中华人民共和国建设用地规划许可证》(地字第普镇规[2018]021号),该地属于商业用地,普宁市玉龙泉温泉山庄取得该用地的国有建设用地使用权,该用地用途为住宿餐饮用地。拟建1栋集住宿和餐饮于一体的休闲娱乐酒店,施工总工期预计约24个月。




据早期备案信息公示,普宁市玉龙泉温泉山庄将建设普宁市玉龙泉康养生态度假村,主要建设养生馆、温泉酒店、特色农庄、田园生态园、养老服务及配套相关设施。玉龙泉温泉山庄酒店将成为该项目的首期建设项目。




