近日,普宁市城市管理局发布了《普宁市船埔卫生院规划总平面公示》,将要建设一栋3层门诊楼,总建筑面积1524.99平方米。

建设工程公示
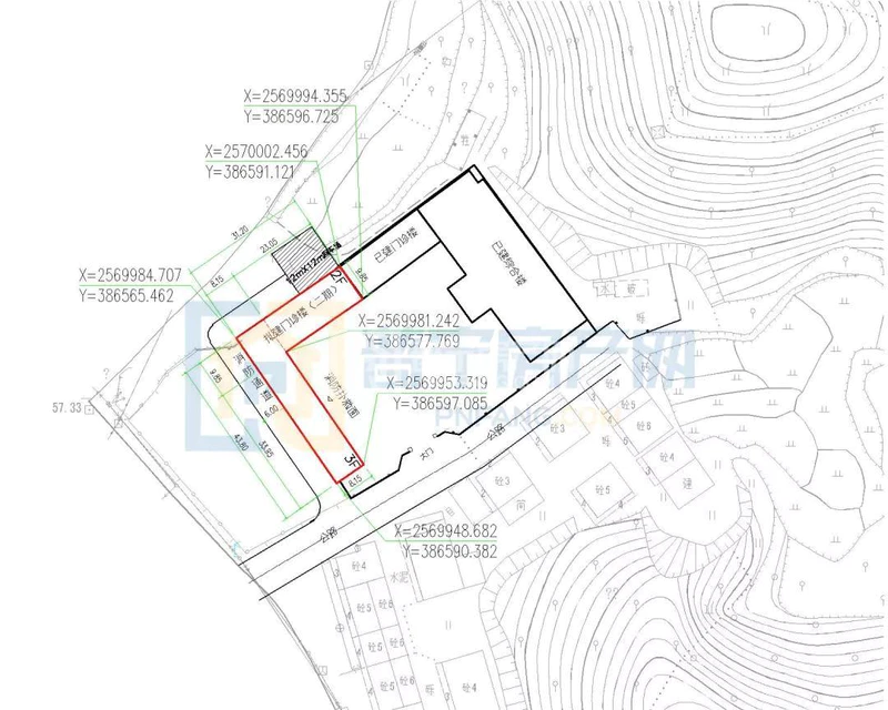
1.建设单位:普宁市船埔卫生院;
2.项目名称:门诊楼(二期)
3.项目位置:船埔镇船埔圩;
4.用地面积:584平方米(0.88亩);
5.建设规模:建设一栋3层门诊楼,总建筑面积1524.99平方米。
6.公示时间:2018年8月8日至2018年8月17日;
如对该建筑工程方案有意见、建议,请于公示日期日期内向城管局提出,
联系邮箱:cz2265247@163.com。
普宁市船埔卫生院规划总平面图
▼▼▼

船埔镇位于普宁市区西南30公里处,与揭西县、陆河县接壤。总面积127.84平方公里,其中山地面积15.8万亩,耕地10.59万亩。辖28个行政村(共120个自然村)和1个社区居委会。为普宁市老区重点镇。位于船埔镇梅田村灰寨寨顶的围龙屋,已有300年左右的历史,为梅田吴氏村民的祖居(始于第三代),是揭阳地区甚至潮汕地区唯一一座大型客家围龙屋。

△船埔镇区

△梅田村围龙屋

△船埔卫生院
普宁市船埔卫生院大概位置图
▼▼▼

门诊楼的建设在一定程度上极大改善了门诊就医环境,又方便了人们就医就诊,更有利于进一步改善医疗条件,增强整体实力,提升医疗服务水平,推动卫生事业健康发展。
来源:普宁市城市管理局