
▲建设工程设计方案

▲项目卫星图
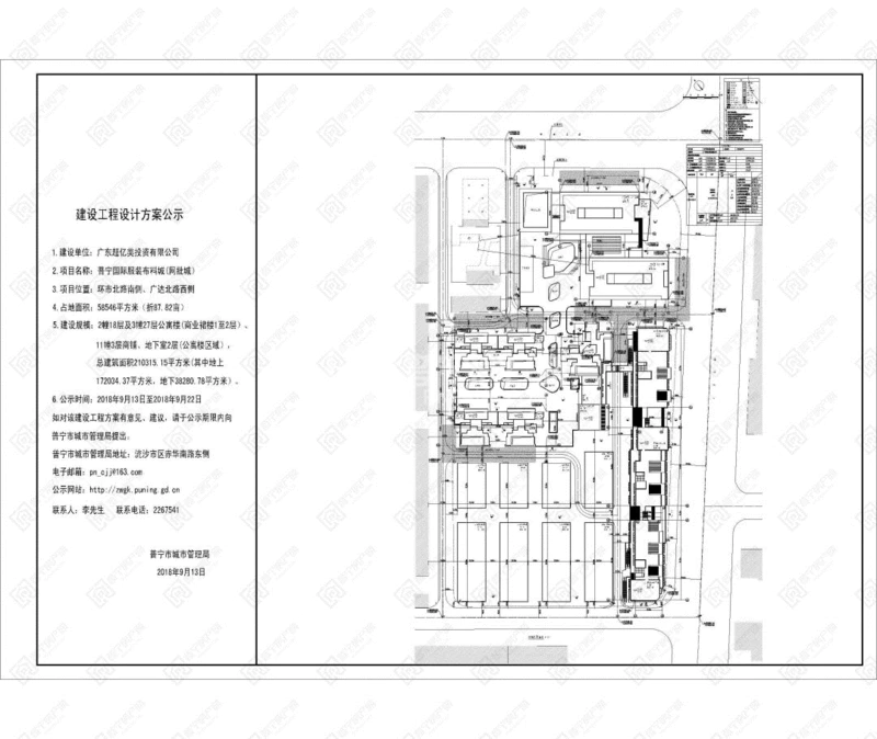
据悉,普宁国际服装布料城(网批城)建设规模为2幢18层及3幢27层公寓楼(商业裙楼1至2层)、11幢3层商铺、地下室2层(公寓楼区域),总建筑面积210315.15平方米(约315亩),其中地上172034.37平方米,地下38280.78平方米。

(▲平面图)

(▲项目效果图)
据了解,普宁国际服装布料城(网批城)其实就是华美中心城,由广东超亿美投资有限公司开发建设,项目位于广达北路与环城市路黄金交汇处,毗邻中国普宁国际服装城一期,占据无可争议的城央核心地段。周边拥有国际5A级写字楼时代中心、大型购物中心星河COCO City、万泰汇、市民休闲中心普宁广场、以及新华城(楼盘详情户型图相册地图0663-2559559)、御景城、光明一号等高端住宅,集CLD、CBD于一体,汇聚全城财富,执掌一市繁华。

项目首创特色商业街4.0,打造粤东商业新宠。20万㎡城央都荟综合体,由特色商业街、专业网批市场、五栋类住宅和两栋loft公寓组成。
后续更多普宁楼盘信息
或添加小编微信



来源:普宁市城市管理局