25轮激烈土拍!楼面价高达3740元/㎡!新开发商来了!
今天,普宁终于迎来了2020年的首场土拍,六幅地块全部出让成功,分别是三宗住宅用地,一宗工业用地,两宗批发零售用地。其中备受关注的铁山兰路地块竞争最为激烈,经25轮竞价最终以8.2亿元被唐商集团拿下,楼面价高达3740元/㎡!而位于广太镇的工业用地经9轮竞价终成交,其它地块均一轮游以底价成交。具体成交情况如下:
PN2020007地块经过25轮竞拍,以82000万元的价格被唐商集团拍下,楼面价3740.27元/㎡,溢价率为51.85%!



据小房君了解,该地块须配建幼儿园,与住宅小区同步设计、同步建设、同步竣工、同步交付使用。在幼儿园建成达到粗装修使用标准并通过验收后,无偿移交给普宁市教育局。还须建设公共设施用房,并负责配建宗地地块北侧的市政道路,道路须与项目同步建设,同步投入使用。

唐商集团成立于2009年,前身为深圳市唐商投资有限公司。集团总部地址位于深圳市,控股及参股的经营管理已延伸到北京、天津、长春、上海、安徽、重庆、江西、广西、海南、香港、新加坡和英国等地,是一家以资本管理与风险管理为核心的控股集团公司。集团下设两类产业控股公司,一是类金融控股公司,专业从事创业投资、融资担保、资产管理、连锁典当以及相关衍生业务;一是实业产业控股公司,投资经营置业管理、商业文化地产、大宗贸易供应链等实体产业。
PN2020001地块只一轮游以27500万元的价格被普宁市翔栩房地产开发有限公司拍下,楼面价2403.33元/㎡!


据悉,该宗地为“三旧”改造地块,位于市区流沙大道南侧(改造范围东至安东街、西至新光南路、南至“豪门夜酒店”南侧道路、北至立新路),交通便利。
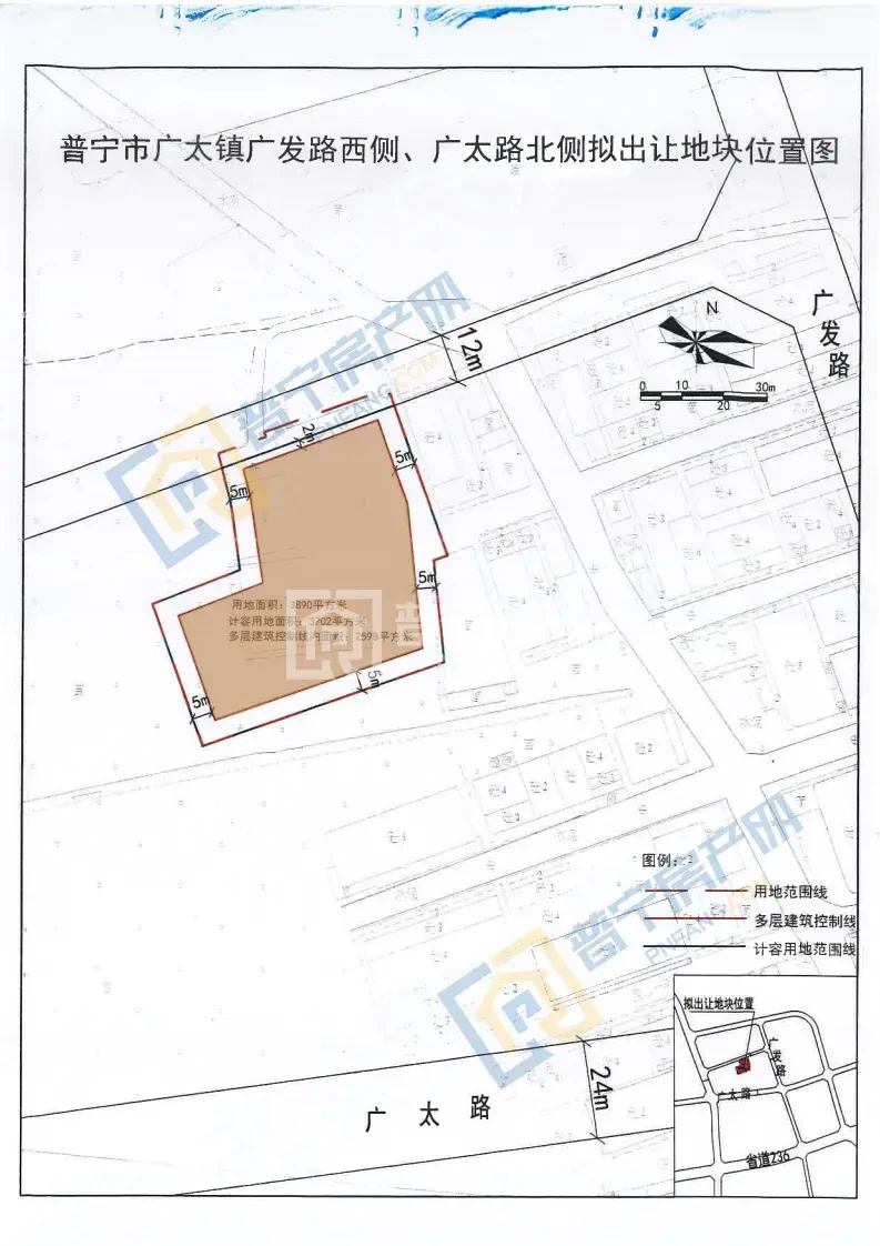
PN2020002地块只一轮游以4505万元的价格被普宁市泓亨实业有限公司拍下,楼面价2548.8元/㎡!


据悉,该地块周边有锦绣园(楼盘详情户型图相册地图0663-2559559)、华美春天(楼盘详情户型图相册地图0663-2559559)、康美福临门等楼盘,附近还有学校医院等,交通便利。PN2020002号地块高层建筑应按有关规范退缩多层建筑控制线且建筑间距应满足日照、消防等有关要求,并与西侧毗邻地块(地块一)统一规划建设;建筑控制线用地范围内可结合人防设施设置一至二层地下停车场地及配套设备用房。住宅停车位配比为≥1辆/户,配建停车位应100%建设充电设施或预留建设安装条件。
PN2020003地块经九轮竞价最终以320万元的价格被普宁市永美乐塑料制品有限公司拍下,楼面价345.76元/㎡,溢价率为39.13%!



PN2020004地块只一轮游以910万元的价格被普宁绵盛投资有限公司拍下,楼面价376.43元/㎡!



PN2020005地块只一轮游以1710万元的价格被普宁绵盛投资有限公司拍下,楼面价381.16元/㎡!


本次出让的地块如今已尘埃落定
而本月19日
备受关注的北二环地块又将花落谁家?
让我们一起拭目以待
对于此次土拍结果你怎么看?
欢迎底部留言,与小编互动!