
该地块须按相关要求配套设置物业管理用房、社区警务室、公共卫生间、垃圾收集间、社区养老服务设施、微型消防站、居民健身设施、配电房、水泵房座等配套公共服务设施; 多层建筑控制线用地范围内可结合人防设施设置一至二层地下停车场地及配套设施用房,住宅按每户不少于一部配套停车位(含地面停车场),地面室外停车位数量不应超过占总停车位数的10%,室外停车场应集中设置,并进行绿化处理,配建停车位应100%预留建设充电基础设施的安装条件。 中骏集团创立于1987年,至今已有33年历史,总部位于上海,是集合房地产开发及相关产业、投资控股、建筑机械、电力设备制造及销售于一体的大型国际化综合性集团企业,2010年在香港联交所主板上市(股票代码01966.HK)。 今年2月,中骏集团以68992万拿下榕江新城滨水活力商业街区!5月,揭阳中骏世界城举行奠基开工仪式。6月底,中骏世界城揭阳城市展厅惊艳盛放。中骏集团将打造以国际主力店为龙头,集购物、娱乐、美食、健康、教育于一体的64万方城市商业综合体商业航母。
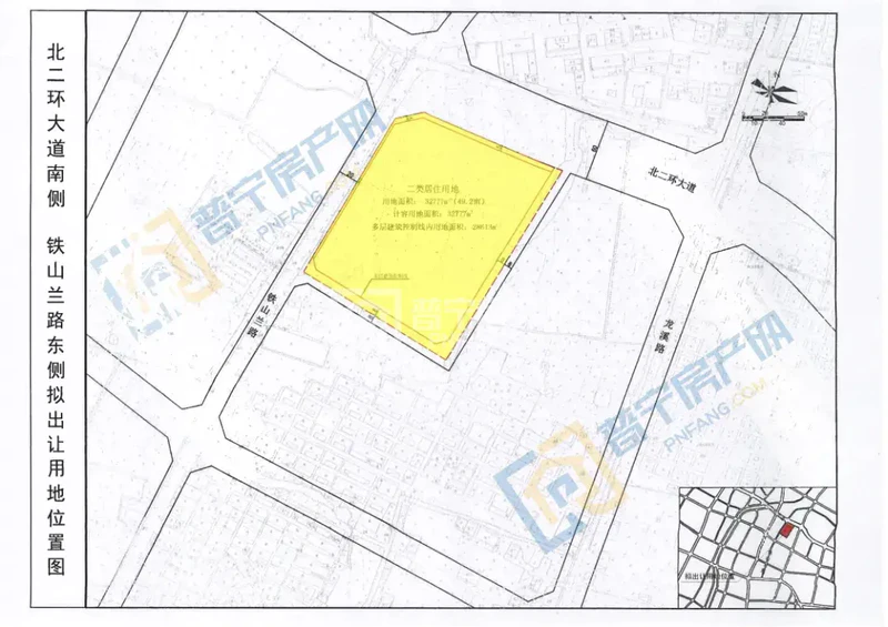
说起北二环地块,可以说是一波三折。首次挂牌是2019年9月,三家企业进行竞拍,虽经过8轮竞价,最后还是以流拍收场。 2020年6月19日重新挂牌出让,起拍价从25900万元提高到35000万元,但因网络故障只经过两轮竞拍后暂停地块交易活动。 今天重新出让,经10轮竞价终于成交。 据小房君了解,北二环地块平整,该地块旁边铁山兰路已完成水泥路面化,道路可直通环城北路,交通便利。周边教学资源丰富,毗邻普宁华美育才学校(新寨校区)、斗文中学、溪心小学等。 但地块周边自建楼居多,宗地面积不足50亩,位于普宁市区偏东北方向,周边最近的楼盘平安里(楼盘详情户型图相册地图)直线距离1.2公里,丽景苑直线距离1.1公里。 根据《普宁市北二环(环城北路、环市东路)两侧重点区域控制性详细规划》里曾提到,将以北二环大道为主线,以大型公共服务设施与开敞空间为节点,形成商业金融服务中心,创造符合城市发展趋势,具有新时代风貌的城市景观,将规划区打造为现代都会区。该地块为北二环片区的第一块土拍地块,如今终于成功出让,未来又将开辟出怎样的新天地?让我们拭目以待!













