转眼2020年已经过半,
对于今年的普宁楼市,
从“暂停”到“重启”,
有人说热度攀升,
有人说温和平稳,
市场走向究竟如何?
小房君还是用数据来揭开真相吧。
楼市企稳,抗风险力强 1 根据统计,2020年1-5月,揭阳全市房地产开发投资131.03亿元,同比增长127.8%。其中,普宁市以36.66亿元位居第一。 1-5月,揭阳全市固定资产投资总额437.85亿元,同比下降2.1%。其中,普宁市以90.61亿元位居第一。 1-5月,揭阳全市税收收入14.62亿元,同比下降14.6%。其中,普宁市以4.52亿元位居第一。 今年上半年,随着疫情防控取得阶段性胜利,恢复社会经济发展成为社会主要任务之后,从1-5月数据来看,揭阳全市房地产开发投资131.03亿元,同比增长127.8%,而普宁市则以36.66亿元位居第一,可见市场的成交量呈现的稳步趋升的态势,也见证了普宁房地产市场正逐渐回暖的趋势。


1 LPR走势示意图

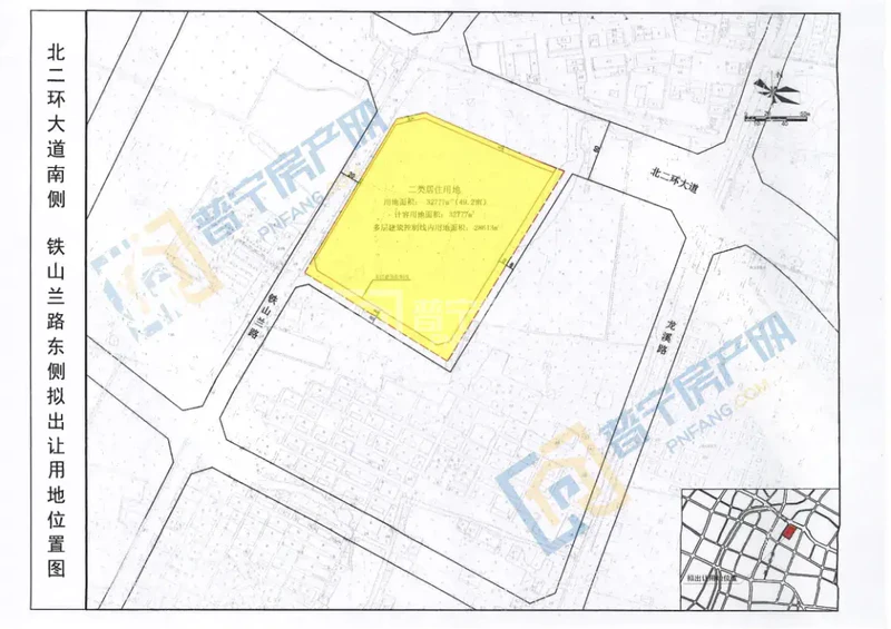
1 整体来说,从4月份开始,随着疫情的逐渐缓解,各核心城市土地出让逐步恢复正常,土地供应节奏加快,土拍市场热度有所增加。 而普宁,这两月土拍市场也相当火热。6月15日,普宁迎来了2020年的首场土拍,六幅地块全部出让成功,其中铁山兰路地块经过25轮激烈争夺才被拿下,楼面价高达3740元/㎡。7月4日,备受关注的普宁北二环地块经10轮竞价终成功出让,楼面价3051元/㎡。 在北二环地块土拍尘埃落定后,小房君用尽洪荒之力综合整理了普宁楼面价前十的土拍地块,数据仅统计商品房住宅用地,截止日期为2020年7月4日。 单单6、7月就有四幅地块的土拍楼面价跻身前列,它们分别是: PN2020001地块以27500万元的价格被普宁市翔栩房地产开发有限公司拍下,楼面价2403.33元/㎡,地块为东市(新安片区)“三旧”改造首期项目,位列TOP8; PN2020002地块以4505万元的价格被普宁市泓亨实业有限公司拍下,楼面价2548.8元/㎡,地块项目名为江景新城二期(楼盘详情户型图相册地图0663-2559559),位列TOP7; 由此可见,普宁上半年土拍市场“来势汹汹”,下半年也依旧值得期待。






1 作为普宁房价标杆,受“土地”限价影响,流沙城区近年来维持“7000+”的水平。 流沙东街道有2个楼盘在售,价格在6600-8200元/㎡左右;流沙南街道有4个楼盘在售,价格在6000-9800元/㎡左右;流沙西街道有3个楼盘在售,价格在6180-8500元/㎡左右;流沙北街道有6个楼盘在售,价格在5630-9800元/㎡左右;池尾(楼盘详情户型图相册地图)街道有6个楼盘在售,价格在5800-11200元/㎡左右;大南山(楼盘详情户型图相册地图)街道有3个楼盘在售,价格在4380-9600元/㎡左右;云落镇只有1个楼盘在售,价格在8000-11000元/㎡左右;占陇镇只有1个楼盘在售,价格在6100元/㎡左右;军埠镇有2个楼盘在售,价格在5500元/㎡左右。 一直以来,普宁翔栩地产都处于普宁房地产龙头老大的地位,西部区域也有星河明珠湾、保利和府、碧桂园群星闪烁! 今年6月,唐商集团以一种“惊艳”的方式荣归故里,3740元/㎡的楼面价一举斩落普宁住宅土拍楼面价第二的位置,折算公共配套费用,楼面价其实接近普宁地王项目(光明1号(楼盘详情户型图相册地图0663-2559559))楼面价!同时较早前唐商集团拿下了新坛村旧改项目,也是雄心勃勃! 7月,中骏集团拿下北二环地块,楼面价3050.92元/㎡。随着唐商集团和中骏集团的进驻,普宁房地产格局也将迈向一个新纪元。 在土地成本高企的同时,2020普宁新开盘项目较少,普宁房地产市场现有的商品房项目也在随着时间推移在不断去化中。各类“特价房”琳琅满目,刚需购房者可抓住时机捡漏!


纵观下半年普宁楼市,
随着疫情的消散,
楼市整体依然处于
稳中向好的发展态势中。
如果你有近期购房的计划,
也可以私聊小编,
给你提供专业独到的购房建议。
