此前备受关注的北二环地块
疑似有新动作
项目或将动工
☟☟☟






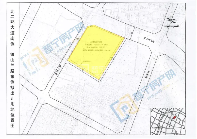
据小房君了解,北二环地块为7月4日土拍的PN2020006地块,该地块位于北二环大道(流沙东街道斗文村段)南侧,宗地面积49.2亩。2家竞买企业相继出价,紧追不舍,经过10轮激烈竞价,最终以4.5亿元的价格被中骏集团成功竞得,成交楼面价3050.92元/㎡,溢价率28.57%!这是中骏集团首次进驻普宁!

该地块须按相关要求配套设置物业管理用房、社区警务室、公共卫生间、垃圾收集间、社区养老服务设施、微型消防站、居民健身设施、配电房、水泵房座等配套公共服务设施;多层建筑控制线用地范围内可结合人防设施设置一至二层地下停车场地及配套设施用房,住宅按每户不少于一部配套停车位(含地面停车场),地面室外停车位数量不应超过占总停车位数的10%,室外停车场应集中设置,并进行绿化处理,配建停车位应100%预留建设充电基础设施的安装条件。

想了解更多楼市详情
