今天,普宁迎来了2020年最后一场土拍!令人意外的是,位于南华路东北侧、光明花园小区东南侧的地块流拍,其余两宗地块均以底价成功出让,成交总价5560万元,位置分别位于普宁大道南侧、河滨南路东侧,土地总面积约12.14亩,使用年限均为70年,具体情况如下:

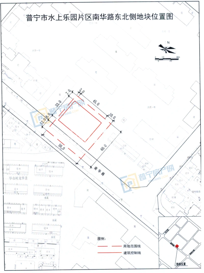
PN2020012地块坐落于南华路东北侧、光明花园小区东南侧,为城镇住宅用地兼容零售商业用地,占地面积为3480平方米,起拍价5730万,起拍楼面价3293.1元/㎡,该地块因无人出价便流拍令人意外,据小房君了解,该地块为光明1号(楼盘详情户型图相册地图0663-2559559)三期地块,更多详情敬请留意普宁房产网(楼盘详情户型图相册地图)后续报道。

根据公告,PN2020012地块计容面积为≤17400平方米(按计容用地面积3480平方米及容积率≤5.0计算),其中:零售商业用房建筑面积≤1000平方米、物业管理用房(建筑面积不少于200平方米)、配电房(建筑面积不少于60平方米)、垃圾收集间(建筑面积不少于20平方米)、消防控制室(建筑面积不少于50平方米);建筑控制线用地范围内可结合人防设施设置一至二层地下停车场地及配套设备用房。住宅停车位配比为≥1辆/户,配建停车位应100%建设充电设施或预留建设安装条件。

PN2020013地块成交总价2900万,折合楼面价1606.29元/㎡,由翔栩地产竞得。地块坐落于普宁大道南侧、凤凰山公园北侧,为70年城镇住宅用地,占地面积为4012平方米。
据小房君了解,该地块位于城市公园项目内,项目涵盖超250亩住宅用地,配套有约600亩凤凰山生态公园及普宁二中附属九年制公立学校。

根据公告,PN2020013号地块须按相关配套设置物业管理用房(建筑面积不少于100平方米)、配电房(建筑面积不少于40平方米)、消防控制室(建筑面积不少于40平方米)、垃圾收集间(建筑面积不少于50平方米)、社区养老服务设施(必须于地面设置、占地面积不少于100平方米、建筑面积不少于100平方米)等配套公共服务设施。

PN2020014地块成交总价2660万,折合楼面价1551.91元/㎡,由詹俊跃竞得。地块坐落于河滨南路东侧、南环大道北侧,为70年城镇住宅用地,占地面积为4081平方米。
根据公告,PN2020014号地块须按相关配套设置物业管理用房(建筑面积不少于100平方米)、配电房(建筑面积不少于40平方米)、消防控制室(建筑面积不少于40平方米)、垃圾收集间(建筑面积不少于50平方米)、社区养老服务设施(必须于地面设置、占地面积不少于100平方米、建筑面积不少于100平方米)等配套公共服务设施。