自我介绍
『户型研习社』用经验给大家盘点一些装修避坑指南,优化户型,希望马上开始装修房子的小白们能够提前避坑或者找到灵感,拥有完美新家~
那么我们第五期就来盘点星河明珠湾四期(楼盘详情户型图相册地图0663-2559559)——L4户型,这个户型产权面积119㎡,4房2卫。
L4户型分布在C11、C13、C14、C15、C16、C20栋的02户。


我们以C11栋02户为例,这个户型西北朝向,阳光不会太刺眼,光照温和,适合怕热的人。让我们看一下原始结构图:

如需量房,扫描上图小程序码
或者点击下方小程序
有了量房数据,才能做出大概的设计方案
知道装修费用和工程量
这个性价比很高,将119㎡合理分配出了四个房间,就是小卧室跟主卧较小。只要合理安排,就能扬长避短。
看一下小编做的平面布置图:

接下来逐个空间解析:
1
入户玄关


入户门后打薄墙体做到顶玄关鞋柜,空间刚刚好。根据自己需求定制不同的分区。

2
厨房和生活阳台


我们将厨房和玄关之间的墙打薄,这样厨房空间会变大一点,没那么拥挤。
厨房做U型,空间虽然小,只能容纳一人做饭,好在五脏俱全。
生活阳台放洗衣机,可以在洗衣机上做个洗衣台洗手盆,顶上可以吊柜,增加收纳空间。

3
餐厅


2米的餐桌可同时满足6-8人的用餐。
靠墙做一排酒柜,餐厅一侧有一整面窗户,光线充足,可以边用餐边欣赏美景。

4
客厅和景观阳台


客厅开间3.5米,建议不要做太厚的电视背景柜,不然显得狭窄,简单做个背景墙可以让空间开阔一点。
由于生活阳台有洗衣晾晒的功能了,这个大阳台我们可以选择做一个景观阳台,种些花花草草。

5
公卫


公卫做洗手盆外置,干湿分离,减轻使用压力,靠窗做淋浴间,做蹲厕,方便客人,也好打扫卫生。

6
次卧1


次卧1是最大的次卧,根据自己喜欢的风格布置即可。

7
次卧2


次卧2在公卫隔壁,可能会受到水声噪音影响,要注意隔音。原始也是没有封窗的,需要后期封窗。

8
次卧3


次卧3空间较小,做榻榻米床,床尾做储物柜。

9
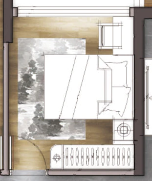
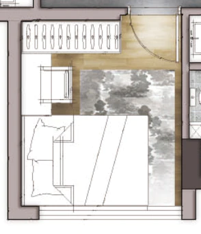
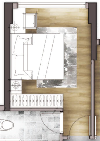
主卧


主卧靠墙做一排衣柜,靠窗做梳妆台。这算是一个比较小的主卧,如果想要更多存储空间就得考虑占用次卧1的空间了。

10
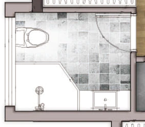
主卫


主卫做三角形布置,钻石型的淋浴间节省了空间。

好啦,今天的分享就到这里啦!如果有需要L4户型的现场全景vr,加入〖户型研习社交流群〗即可查看。下一期小编还将分享星河明珠湾其他户型,敬请期待!
我们家装负责人阿锟联合普宁众多设计师精心准备了3个装修硬货合集,只要来普宁家装店内即可免费领取,欢迎各位邻居到普宁家装线下体验店了解设计和装修。


地址:普宁市池尾(楼盘详情户型图相册地图)街道君临天下(楼盘详情户型图相册地图0663-2559559)普宁家装店
为了增进邻里感情
使业主能够相互交流、分享装修经验
装修哥创建了〖户型研习社交流群〗
由普宁家装规范化管理
小编还会在群里分享装修攻略、
装修案例欣赏等等
让大家轻松了解普宁本地装修资讯
欢迎大家扫码加入

如无法加入群聊
可扫码添加装修哥 ↓ ↓ ↓
记得备注“入群”

